122668 Grey Road 9, West Grey, Ontario N0G 1C0

Listed for:
$1,150,000
2 beds
1 baths
Listed 70 days ago
Modular for rent: 122668 Grey Road 9, West Grey, Ontario N0G 1C0

View all 36 photos

Learn more about this property
Listing provided by:
eXp Realty
MLS® number:
X12249436
Agent:
Brittany Vanderstraeten
*Indicates required field
Name is required
Email is required
Please enter a valid phone number (e.g., 416-111-1111).

About

Cross Streets: Concession Road 2 WGR. ** Directions: From Ayton head east on Grey Road 9. Follow Grey Rd. 9 for 8 km, property is on the right, **Google maps: 12268 Grey County Rd. 9 Mount Forest. Acreage, charm, and functionality all just minutes from Mount Forest. Set on 11 acres between Mount Forest and Ayton, this home offers a rare mix of turnkey comfort and rural opportunity. With everything on the main floor, the home features 2 bedrooms, 1 bathroom, and a bright, open living space that walks out to a large deck overlooking the pasture. Downstairs, the partially finished walk-out basement gives you flexibility storage, workspace, or potential for more finished space.The property itself is ready to work: fenced pastures for horses, goats, or hobby animals, a 30x50 heated shop with heat, hydro, water, a 12'900lb hoist. 6-7 acres of mature hardwood maple. Whether you're dreaming of a small farm, a produce stand, or just wide open space to breathe, this one has the setup to make it happen. (id:27476)

Property Highlights

MLS® Number
X12249436
Type
Single Family
Community Name
West Grey
Land Size
565.5 x 831.7 FT|10 - 24.99 acres
Parking Space Total
13

Building

Building Type
Modular
Storeys
1.00
Square Footage
1100 - 1500 sqft
Bathrooms Total
1
Bedrooms Above Ground
2
Bedrooms Total
2
Amenities
Fireplace(s)
Exterior Finish
Vinyl siding
Fireplace Present
Yes
Basement Type
N/A, N/A (Partially finished)
Basement Features
Walk out
Building Heating Type
Forced air
Heating Fuel
Propane
Building Cooling Type
Window air conditioner

Utilities

Water
Drilled Well
Utility Sewer
Septic System

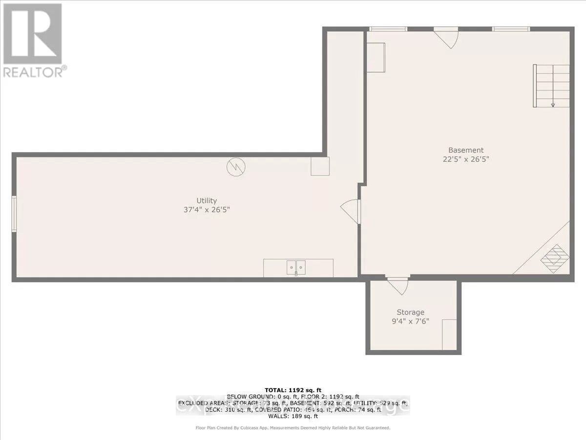
Room Layout

Recreational, Games room
Basement
6.7 m x 7.6 m
Other
Basement
2.2 m x 2.6 m
Other
Basement
11.1 m x 3.6 m
Foyer
Main level
2.8 m x 2.3 m
Kitchen
Main level
8.7 m x 3.9 m
Living room
Main level
3.6 m x 7.1 m
Bathroom
Main level
2.2 m x 3 m
Bedroom
Main level
3 m x 2.8 m
Primary Bedroom
Main level
3.9 m x 3 m

Location

Community Spotlight: Homes For sale in Your Neighborhood