114228 Grey Road 3 Road, West Grey, Ontario N0G 1S0

Listed for:
$1,999,000
5 beds
3 baths
Listed 60 days ago
114228 Grey Road 3 Road, West Grey, Ontario N0G 1S0

View all 49 photos

Learn more about this property
Listing provided by:
Royal LePage RCR Realty
MLS® number:
X12414004
Agent:
Angela Boersma
*Indicates required field
Name is required
Email is required
Please enter a valid phone number (e.g., 416-111-1111).

About

Cross Streets: GREY ROAD 3 AND CON 8 NDR. ** Directions: 114228 CON 3 WEST GREY. Scenic 100+/- acre farm, organic for over 20 years, features a lovely stone bungalow, classic L-shaped bank barn, older shed, garage/workshop, and a private in-ground pool area. The Quality Home, built in 2000, boasts a covered wrap-around porch in a picturesque setting with double car garage and durable steel roof. Inside, the spacious layout includes a large eat-in kitchen with island and windowed nook capturing the views, a bright living room with wood fireplace, 3 bedrooms, full bath with cheater ensuite to the primary, laundry and 2-piece bath. The lower level has lots of storage, an office, walk-up to the garage, plus a 2-bedroom in-law suite with bathroom, living room, walkout to patio, and room for a kitchenette. Highlights include abundant windows, newer appliances, central vac and central air. Outdoors, enjoy the fenced in-ground pool with patio and retractable awning, perfect for gatherings. The bank barn is ideal for cattle and hay storage, plus there is a shed and garage/workshop. Mature trees, fenced pastures, and scenic fields complete this peaceful setting just minutes from town. Grey County lists the property at 100.14 acres while tax bill states 98.9 acres. Approximately 55 workable. Field of winter rye has been planted. Pool has been professionally closed by Rintoul's. (id:27476)

Property Highlights

MLS® Number
X12414004
Type
Agriculture
Community Name
West Grey
Land Size
3250 x 1360 FT|100+ acres
Parking Space Total
16

Building

Storeys
1.00
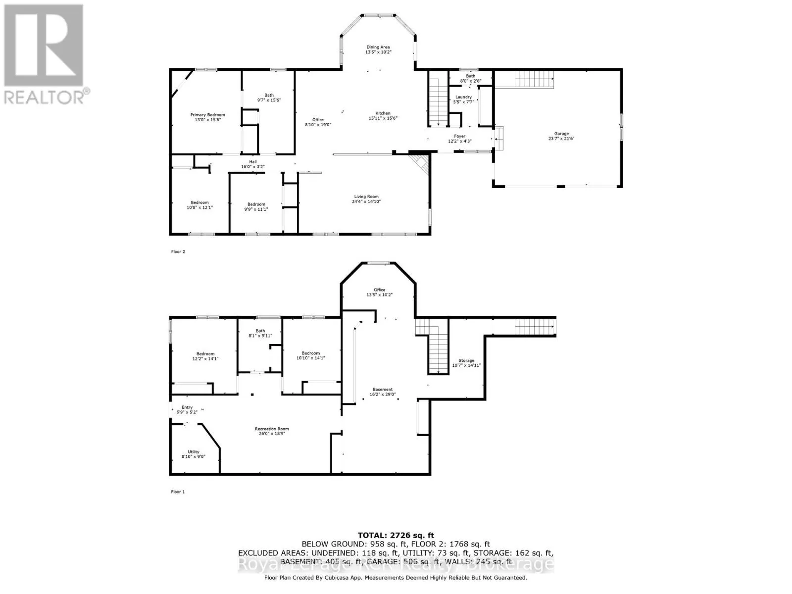
Square Footage
2500 - 3000 sqft
Bathrooms Total
3
Bedrooms Above Ground
5
Bedrooms Total
5
Amenities
Fireplace(s)
Exterior Finish
Stone
Fireplace Present
Yes
Basement Type
Full (Finished)
Basement Features
Walk out
Building Heating Type
Forced air
Heating Fuel
Propane
Building Cooling Type
Central air conditioning, Air exchanger

Utilities

Water
Drilled Well
Utility Sewer
Septic System

Room Layout

Bedroom
Lower level
4.3 m x 3.71 m
Bedroom
Lower level
4.3 m x 3.3 m
Bathroom
Lower level
3.02 m x 2.45 m
Recreational, Games room
Lower level
7.92 m x 5.72 m
Other
Lower level
8.84 m x 4.92 m
Office
Lower level
4.08 m x 3.1 m
Other
Lower level
4.54 m x 3.22 m
Utility room
Lower level
2.74 m x 2.7 m
Foyer
Lower level
1.76 m x 1.59 m
Kitchen
Main level
7.54 m x 10.52 m
Eating area
Main level
4.08 m x 3.09 m
Living room
Main level
7.42 m x 4.53 m
Primary Bedroom
Main level
4.73 m x 3.96 m
Bedroom
Main level
3.39 m x 2.97 m
Bedroom
Main level
3.69 m x 3.25 m
Bathroom
Main level
4.72 m x 2.93 m
Bathroom
Main level
2.44 m x 0.81 m
Laundry room
Main level
2.32 m x 1.65 m
Foyer
Main level
3.71 m x 1.3 m

Location