4 - 229 Bruce Street S, West Grey, Ontario N0G 1R0

Listed for:
$462,831
3 beds
3 baths
Listed 172 days ago
Row / Townhouse for rent: 4 - 229 Bruce Street S, West Grey, Ontario N0G 1R0

View all 30 photos

About

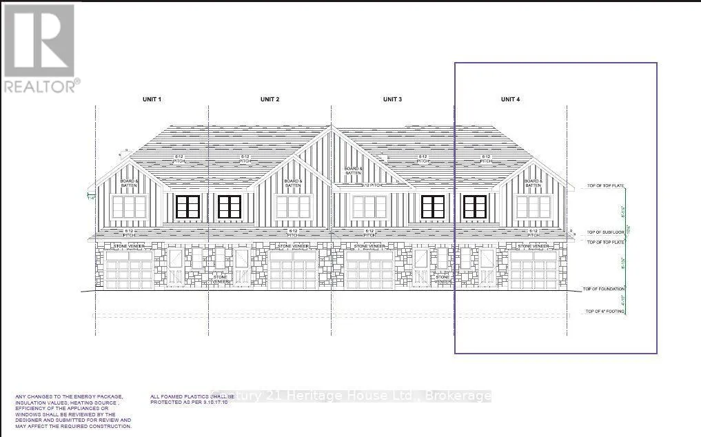
Cross Streets: Bruce & Saddler. ** Directions: Durham. Welcome to Unit 4 -229 Bruce St South Durham to these custom built townhomes by Candue Homes 2020 Ltd!! Built on slab is this townhouse which features in-floor heating & a natural gas furnace. This 2-storey home has 3 bedrooms , 3 baths, luxury vinyl plank floors, quartz in the kitchen & bathroom. There is an electric fireplace & more. Great inclusions package with appliances,water softner & garage door opener. This home is very efficient featuring all new ERV air exchanger, central air, sump pump,, and an owned hot water heater. For first-time buyers, this is a fantastic opportunity to own a brand new home - especially with the new GST savings in rebates.List Price is based on the Purchaser qualifying for the new housing rebates that are now in effect Apr.1/2016 & the Purchaser assigning such rebate to the vendorat the time of closing.(If sale is permitted by the regulations)failing which the purchase price will be increasedby the ammount of the Applicable WST & paid by purchaser on Closing.All as set out particulary in the Agreement of Sale & Purchase & entered in by both parties.Purchasers are required to comfirm their Eligibility directly with their lawyer & or financial advisors.See listing Realtors for info. Get in on this outside unit while you can. Great units for a Great Price!! call today for more info! (id:27476)

Property Highlights

MLS® Number
X12468225
Type
Single Family
Community Name
West Grey
Ownership Type
Freehold
Land Size
25.8 x 127.9 FT
Parking Space Total
2

Building

Building Type
Row / Townhouse
Storeys
1.50
Square Footage
1100 - 1500 sqft
Bathrooms Total
3
Bedrooms Above Ground
3
Bedrooms Total
3
Amenities
Fireplace(s), Separate Electricity Meters
Exterior Finish
Wood, Brick Veneer
Fireplace Present
Yes
Basement Type
None
Basement Features
Building Heating Type
Forced air
Heating Fuel
Natural gas
Building Cooling Type
Central air conditioning

Utilities

Water
Municipal water
Utility Sewer
Sanitary sewer

Room Layout

Bathroom
Second level
2.9 m x 2.6 m
Other
Second level
2.7 m x 1.7 m
Laundry room
Second level
0.95 m x 1.7 m
Bedroom
Second level
3.85 m x 3.67 m
Bedroom 2
Second level
3.72 m x 2.85 m
Bedroom 3
Second level
3.2 m x 2.74 m
Bathroom
Second level
2.6 m x 1.75 m
Kitchen
Main level
3.6 m x 2.74 m
Dining room
Main level
3.6 m x 2.85 m
Family room
Main level
4.3 m x 3.45 m
Utility room
Main level
1.22 m x 1.22 m
Foyer
Main level
3.4 m x 1.22 m
Bathroom
Main level
2.25 m x 1.29 m

Location

Learn more about this property
Listing provided by:
Century 21 Heritage House Ltd.
MLS® number:
X12468225
Agent:
Bruce Marshall
*Indicates required field
Name is required
Email is required
Please enter a valid phone number (e.g., 416-111-1111).

Community Spotlight: Homes For sale in Your Neighborhood