122668 Grey Road 9, West Grey, Ontario N0G 1C0

Listed for:
$1,150,000
2 beds
1 baths
Listed 9 days ago
122668 Grey Road 9, West Grey, Ontario N0G 1C0

View all 21 photos

About

Cross Streets: Concession Road 2 WGR. ** Directions: From Ayton head east on Grey Road 9. Follow Grey Rd. 9 for 8 km, property is on the right, **Google maps: 12268 Grey County Rd. 9 Mount Forest. 11-Acre Rural Retreat | 30x50 Heated Shop | A Turnkey Hobby Farm. Just minutes from Mount Forest and Ayton. This property offers a rare "turnkey" opportunity for those seeking a sweet homestead or a professional-grade workspace. The Home: Enjoy the ease of main-floor living in this bright, open-concept 2-bedroom home. The living space features a walk-out to a sprawling deck with stunning southerly views over your private pasture. The partially finished walk-out basement provides excellent flexibility for a home office, additional storage, or future finished living space. The Shop: Perfect for entrepreneurs or hobbyists, the 30x50 detached shop is fully equipped with heat, hydro, water, and a 12'900lb hoist. The Land: The 11-acre parcel is ready to work for you, featuring fenced pastures ideal for horses or hobby animals, alongside 6-7 acres of mature hardwood maple forest. From starting a local produce stand to simply enjoying the wide-open space to breathe, this property is uniquely equipped to make your rural dreams a reality. Located with easy highway access while maintaining total country peace. (id:27476)

Property Highlights

MLS® Number
X12767686
Type
Agriculture
Community Name
West Grey
Land Size
565.5 x 831.7 FT|10 - 24.99 acres
Parking Space Total
14

Building

Storeys
1.00
Square Footage
1100 - 1500 sqft
Bathrooms Total
1
Bedrooms Above Ground
2
Bedrooms Total
2
Exterior Finish
Vinyl siding
Fireplace Present
Yes
Basement Type
N/A, N/A (Partially finished)
Basement Features
Walk out
Building Heating Type
Forced air, Not known
Heating Fuel
Propane, Wood
Building Cooling Type
Window air conditioner

Utilities

Water
Drilled Well
Utility Sewer
Septic System

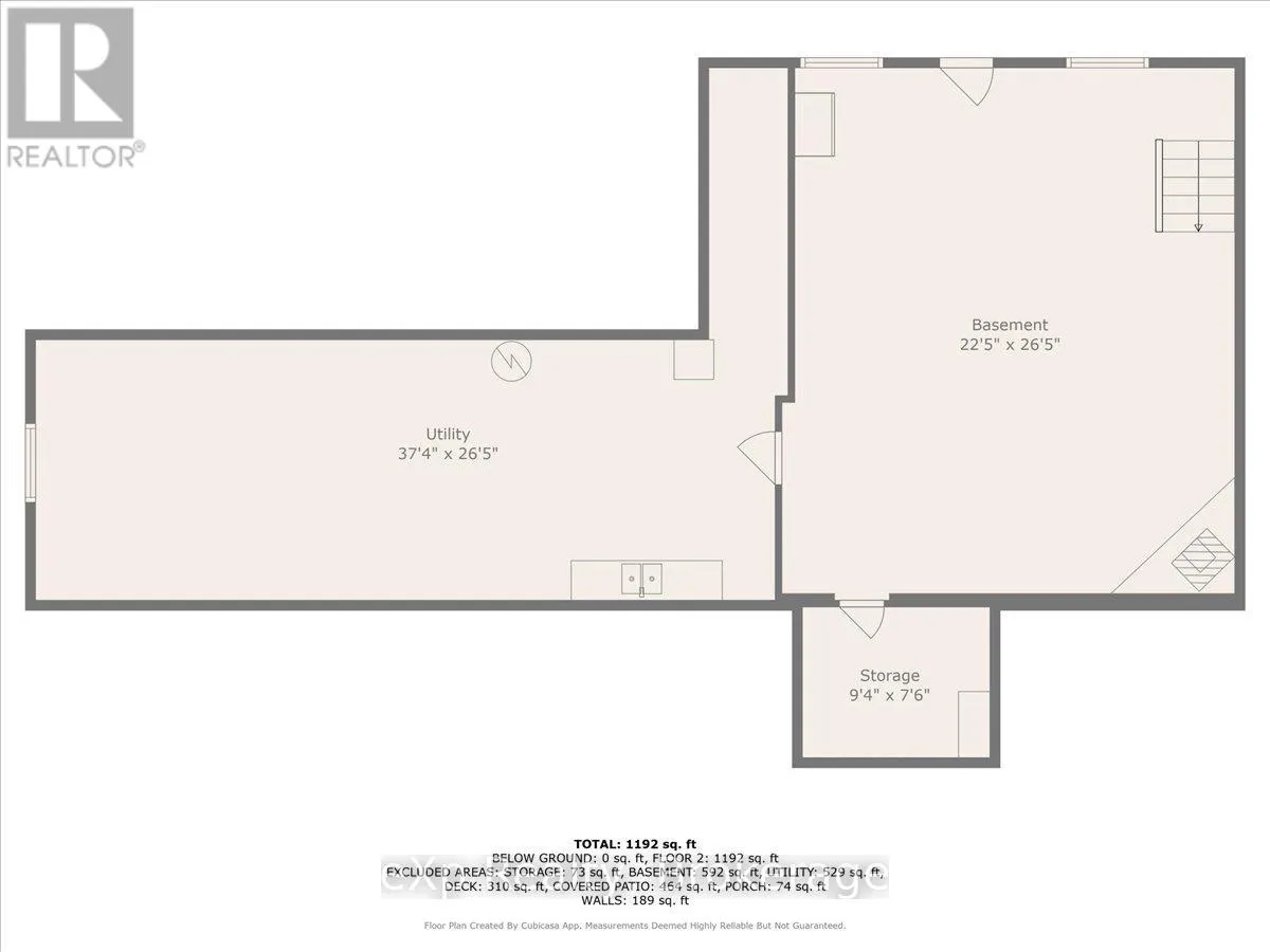
Room Layout

Recreational, Games room
Basement
21.98 m x 24.93 m
Other
Basement
7.21 m x 8.53 m
Other
Basement
36.41 m x 11.81 m
Foyer
Main level
9.18 m x 7.54 m
Kitchen
Main level
28.54 m x 12.79 m
Living room
Main level
11.81 m x 23.29 m
Bedroom
Main level
9.84 m x 9.18 m
Primary Bedroom
Main level
12.79 m x 9.84 m

Location

Learn more about this property
Listing provided by:
eXp Realty
MLS® number:
X12767686
Agent:
Brittany Vanderstraeten
*Indicates required field
Name is required
Email is required
Please enter a valid phone number (e.g., 416-111-1111).

Community Spotlight: Homes For sale in Your Neighborhood