103 Treble Drive, West Grey, Ontario N0G 1R0

Listed for:
$459,900
3 beds
3 baths
Listed 5 days ago
Row / Townhouse for rent: 103 Treble Drive, West Grey, Ontario N0G 1R0

View all 2 photos

About

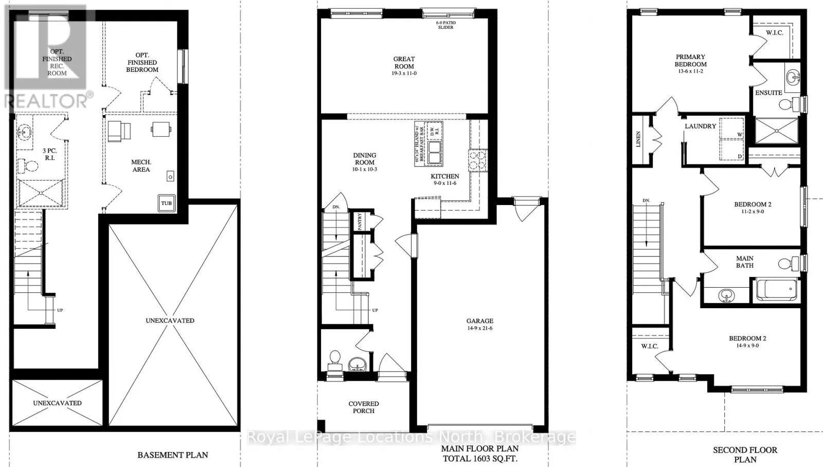
Cross Streets: Hwy 6. ** Directions: Jackson St E, North on Tremble. To be built! This 1,603 sq.ft., 3-bedroom, 2.5-bathroom townhome by Sunvale Homes is scheduled for completion in January 2027. Featuring 9-foot ceilings on the main level and a bright, functional layout, this home is designed for comfortable everyday living and entertaining. Buyers will enjoy the exciting opportunity to choose their own finishes, creating a space that reflects their personal style and preferences. Located in the desirable Carriage Crossing community in Durham, this growing neighbourhood combines small-town charm with everyday convenience. Surrounded by scenic trails, parks, and nearby rivers, and just minutes from local shops and recreation, it's perfect for families, first-time buyers, or anyone seeking a relaxed lifestyle Convenient access to Highway 6 makes commuting easy while allowing you to enjoy the peaceful setting of West Grey. Includes sod, garden package and paved driveway. This is the Millstone model. Additional closing costs apply. Price does not include HST. Buyers who qualify under the government rebate program, pending legislation, may be eligible for a full HST rebate. Purchasers must verify their eligibility directly with their own legal or financial advisors. (id:27476)

Property Highlights

MLS® Number
X12942506
Type
Single Family
Community Name
West Grey
Ownership Type
Freehold
Land Size
26.5 x 119.8 FT
Parking Space Total
3

Building

Building Type
Row / Townhouse
Storeys
2.00
Square Footage
1500 - 2000 sqft
Bathrooms Total
3
Bedrooms Above Ground
3
Bedrooms Total
3
Exterior Finish
Brick, Vinyl siding
Fireplace Present
No
Basement Type
Full (Unfinished)
Basement Features
Building Heating Type
Forced air
Heating Fuel
Natural gas
Building Cooling Type
None

Utilities

Water
Municipal water
Utility Sewer
Sanitary sewer

Location

Learn more about this property
Listing provided by:
Royal LePage Locations North
MLS® number:
X12942506
Agent:
Meghan Barber
*Indicates required field
Name is required
Email is required
Please enter a valid phone number (e.g., 416-111-1111).

Community Spotlight: Homes For sale in Your Neighborhood