210 Spruce Drive, West Grey, Ontario N4N 3B8

Listed for:
$414,900
2 beds
2 baths
Listed 3 days ago
House for rent: 210 Spruce Drive, West Grey, Ontario N4N 3B8

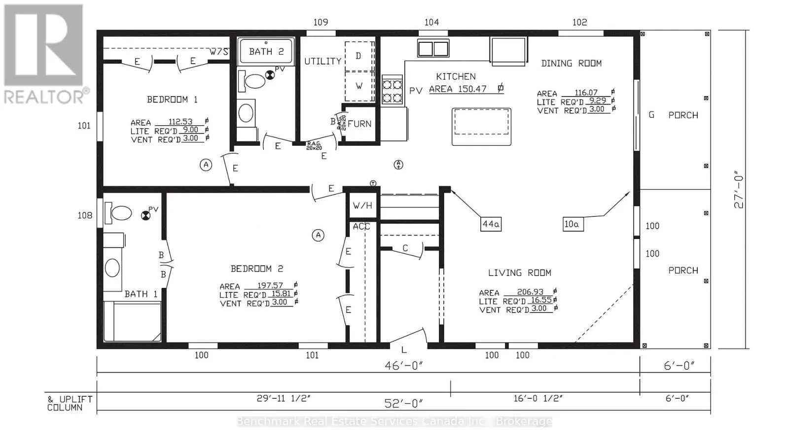
View all 21 photos

About

Cross Streets: County Road 4, 30th Sideroad. ** Directions: From Durham, Travel West on Grey Road 4, Turn North on 30th Side road. Welcome to the Albany model located on lot 210 in White Tail Modular Home Park. Country living, just minutes from Hanover. Featuring 2 bedrooms and 2 full bathrooms, the large open concept design features a gourmet style kitchen with island and stainless steel appliances. The master suite offers an oversized walk in closet and ensuite. There is also a second bedroom, bathroom and laundry room. Perfect for retiring or first time home owners. This home comes with a 30 year land lease and a builder warranty. Paved driveway is included in the price. Buyer can build a single car garage and/or tool shed at their expense. (id:27476)

Property Highlights

MLS® Number
X12955696
Type
Single Family
Community Name
West Grey
Maintenance Fee
595.00
Ownership Type
Leasehold/Leased Land
Land Size
60 x 120 FT ; 60 x 85 x 97 x 120
Parking Space Total
4

Building

Building Type
House
Storeys
1.00
Square Footage
1100 - 1500 sqft
Bathrooms Total
2
Bedrooms Above Ground
2
Bedrooms Total
2
Exterior Finish
Vinyl siding
Fireplace Present
No
Basement Type
None
Basement Features
Building Heating Type
Forced air
Heating Fuel
Natural gas
Building Cooling Type
Central air conditioning

Utilities

Utility Sewer
Septic System

Room Layout

Living room
Main level
6.55 m x 5.11 m
Kitchen
Main level
3.17 m x 2.74 m
Dining room
Main level
3.05 m x 2.82 m
Foyer
Main level
3.86 m x 1.52 m
Primary Bedroom
Main level
4.72 m x 3.89 m
Bathroom
Main level
2 m x 2 m
Bedroom
Main level
3.3 m x 3.17 m
Bathroom
Main level
2 m x 2 m
Laundry room
Main level
2.72 m x 1.93 m

Location

Learn more about this property
Listing provided by:
Benchmark Real Estate Services Canada Inc.
MLS® number:
X12955696
Agent:
Jeff Hiscock
*Indicates required field
Name is required
Email is required
Please enter a valid phone number (e.g., 416-111-1111).