142168 Grey 9 Road, West Grey, Ontario N0G 1C0

Listed for:
$749,900
3 beds
2 baths
Listed 2 days ago
House for rent: 142168 Grey 9 Road, West Grey, Ontario N0G 1C0

View all 23 photos

About

Cross Streets: Side Road 25. ** Directions: 142168 GREY 9 RD, WEST GREY. Welcome to Grey Road 9 in the Municipality of West Grey. This charming brick bungalow sits on just under one acre of land and is only minutes from the town of Ayton. The traditional layout features three bedrooms on the main level, a spacious living room, and a generous eat-in kitchen with patio doors leading to a brand-new deck that overlooks beautiful countryside views. The main floor also includes a full bathroom, a powder room, and convenient main-level laundry. Downstairs, you'll find a large, oversized finished rec room and a utility room with walk-up access to the attached garage. Outside, a perfectly sized detached shop offers endless possibilities, complemented by a landscaped yard, paved driveway, and stunning panoramic country views that truly set this property apart. (id:27476)

Property Highlights

MLS® Number
X12996716
Type
Single Family
Community Name
West Grey
Ownership Type
Freehold
Land Size
196.9 x 219.8 FT
Parking Space Total
10

Building

Building Type
House
Storeys
1.00
Square Footage
1100 - 1500 sqft
Bathrooms Total
2
Bedrooms Above Ground
3
Bedrooms Total
3
Exterior Finish
Brick
Fireplace Present
Yes
Basement Type
Partial, Full
Basement Features
Building Heating Type
Forced air
Heating Fuel
Propane
Building Cooling Type
Central air conditioning

Utilities

Utility Sewer
Septic System

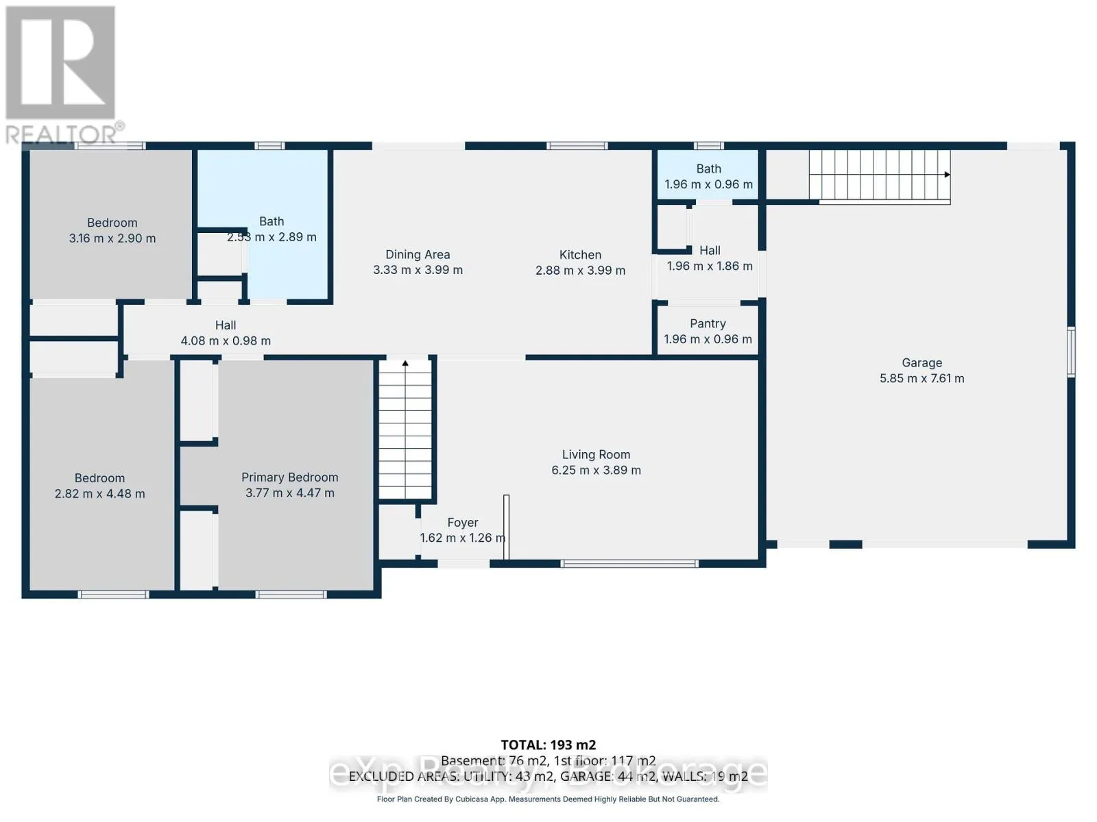
Room Layout

Recreational, Games room
Basement
7.82 m x 8.58 m
Utility room
Basement
5.97 m x 7.99 m
Living room
Main level
6.25 m x 3.89 m
Dining room
Main level
3.33 m x 3.99 m
Kitchen
Main level
2.88 m x 3.99 m
Primary Bedroom
Main level
3.77 m x 4.47 m
Bedroom
Main level
2.82 m x 4.48 m
Bedroom
Main level
3.16 m x 2.9 m
Pantry
Main level
1.96 m x 0.96 m
Foyer
Main level
1.62 m x 1.26 m

Location

Learn more about this property
Listing provided by:
eXp Realty
MLS® number:
X12996716
Agent:
Jeremy Ellis
*Indicates required field
Name is required
Email is required
Please enter a valid phone number (e.g., 416-111-1111).