9183 Silver Street, West Lincoln, Ontario L0R 1E0

Listed for:
$699,900
3 beds
2 baths
Listed 20 days ago
House for rent: 9183 Silver Street, West Lincoln, Ontario L0R 1E0

View all 47 photos

About

Cross Streets: Binbrook Rd & Silver Street. ** Directions: Binbrook road turns into silver street which is RR 65. Welcome to 9183 Silver Street in Caistor Centre - a beautifully maintained 3-bedroom, 2-bath bungalow that is ready for a new family to call home. If you're looking for space, comfort, and lifestyle, this property truly has it all. From the moment you arrive, you'll appreciate the extra-large driveway with plenty of room for family and friends. Inside and out, the home is designed for both everyday living and entertaining, featuring a large deck ideal for hosting and relaxing outdoors. The garage includes a dedicated hobby shop, perfect for projects, storage, or creating your own workshop space. Directly across the street, you'll find a community centre and park, offering green space and recreation just steps from your front door. Enjoy the peace and charm of country living while still being only minutes from city conveniences, with Smithville and Binbrook both less than a 15-minute drive away. Extensive updates provide exceptional peace of mind, including a new septic tank and waterproofed front foundation wall completed in 2022, a new furnace, air conditioner, and water heater installed in 2023, a new roof and flashing in 2023, a waterproofed cistern in 2024, a new water pump in 2023, updated appliances including stove, fridge, washer, and dryer in 2022, a new dishwasher in 2025, a whole-home water filtration system with UV added in 2022, and a reverse osmosis water filter installed in 2022. This is an absolute must-see property that perfectly blends space, upgrades, and lifestyle - ready to welcome you home. (id:27476)

Property Highlights

MLS® Number
X12695564
Type
Single Family
Community Name
056 - West Lincoln
Ownership Type
Freehold
Land Size
110 x 179.7 FT
Parking Space Total
7

Building

Building Type
House
Storeys
1.00
Square Footage
1100 - 1500 sqft
Bathrooms Total
2
Bedrooms Above Ground
3
Bedrooms Total
3
Amenities
Park, Place of Worship
Exterior Finish
Vinyl siding
Fireplace Present
No
Basement Type
Full (Unfinished)
Basement Features
Building Heating Type
Forced air
Heating Fuel
Natural gas
Building Cooling Type
Central air conditioning

Utilities

Utility Sewer
Septic System

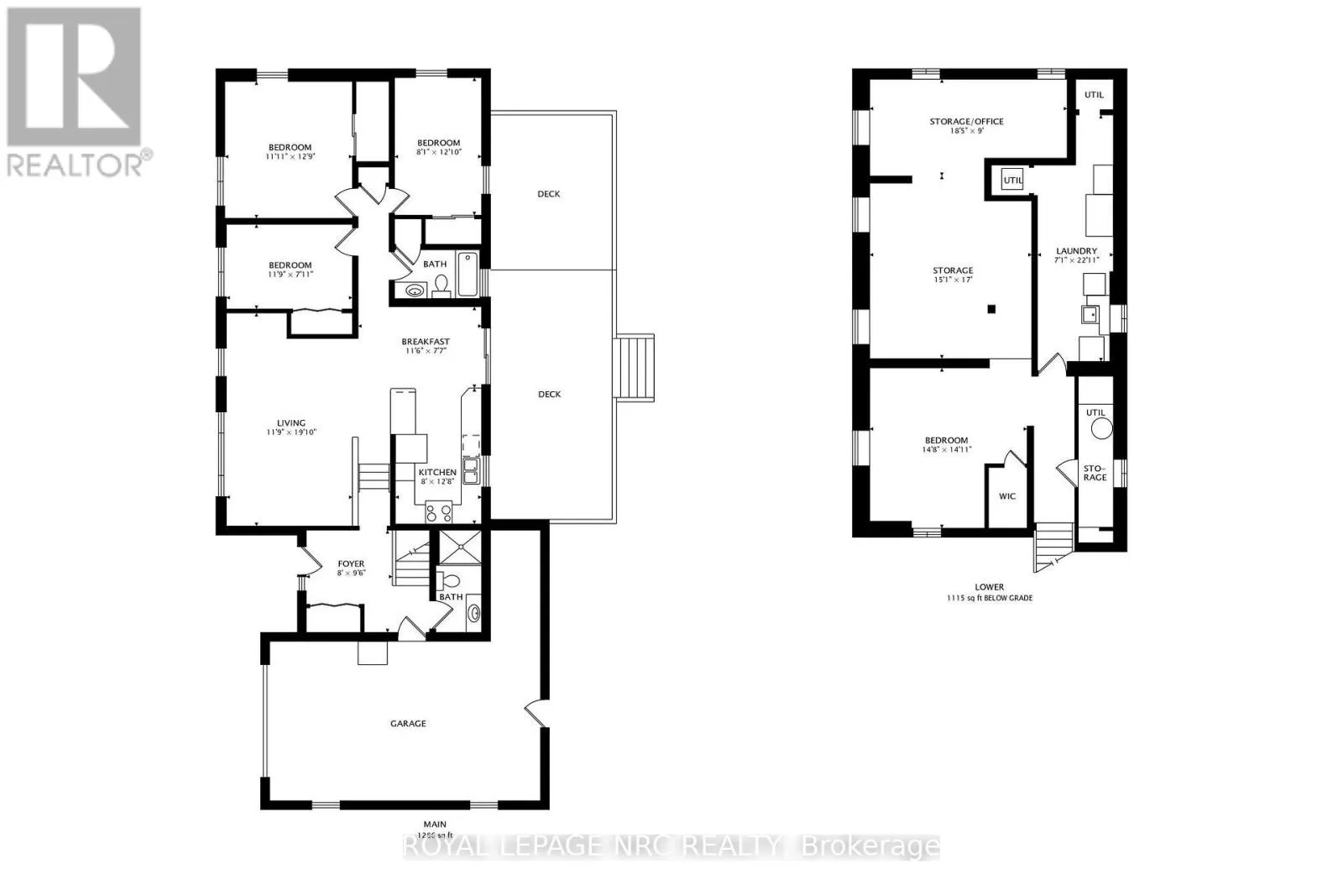
Room Layout

Utility room
Basement
4.6 m x 5.18 m
Laundry room
Basement
2.16 m x 6.98 m
Foyer
Main level
2.44 m x 2.9 m
Living room
Main level
3.58 m x 6.05 m
Eating area
Main level
3.51 m x 2.31 m
Kitchen
Main level
2.44 m x 3.86 m
Primary Bedroom
Main level
3.89 m x 3.63 m
Bedroom 2
Main level
3.58 m x 2.41 m
Bedroom 3
Main level
2.46 m x 3.91 m
Bathroom
Main level
Measurements not available
Bathroom
Main level
Measurements not available
Utility room
Other
5.61 m x 2.74 m

Location

Learn more about this property
Listing provided by:
ROYAL LEPAGE NRC REALTY
MLS® number:
X12695564
Agent:
Attila Biro
*Indicates required field
Name is required
Email is required
Please enter a valid phone number (e.g., 416-111-1111).