8 - 16 Abingdon Road, West Lincoln, Ontario L0R 1E0

Listed for:
$1,235,000
3 beds
3 baths
Listed 19 days ago
House for rent: 8 - 16 Abingdon Road, West Lincoln, Ontario L0R 1E0

View all 8 photos

About

Cross Streets: Siver Street ( #65). ** Directions: Property is located at the corner of Abingdon Rd. & Siver St. #65. Welcome to this exclusive 9-lot country estate community, offering a rare opportunity to build your dream home on a premium 1+ acre lots providing ample space, privacy, and a generous building footprint for your custom estate. Key Features: Lot Size: 1+ Acre, Zoning: R1A - Single Detached Residential Draft Plan Approved Serviced Lot: To be delivered with hydro, natural gas, cable, internet, internal paved road & street lighting, street signs, mail boxes. Construction Ready: Approximately Phase 1 - Summer 2026 | Phase 2 - Spring 2027. Build Options: Choose from our custom home models ranging from 1,800 sq. ft. to 3,000 + sq. ft. or bring your own vision. Surrounded by upscale estate Custom Bungalow homes, this is your chance to design and build a custom residence in a picturesque country setting without compromising on modern conveniences. Enjoy peaceful living while being just minutes to Binbrook (8 min.), Hamilton, Stoney Creek, and Niagara. Easy access to shopping, restaurants, and major highways, with the QEW only 15 minutes away. This lot offers the perfect blend of rural charm and urban connectivity - ideal for those seeking luxury, space, and community. Don't miss this opportunity - secure your lot today and start planning your custom estate home! (id:27476)

Property Highlights

MLS® Number
X12733924
Type
Single Family
Community Name
056 - West Lincoln
Ownership Type
Freehold
Land Size
176.1 x 244.5 FT ; 176.12x244.53x176.12x244.53|1/2 - 1.99 acres
Parking Space Total
6

Building

Building Type
House
Storeys
1.00
Square Footage
1500 - 2000 sqft
Bathrooms Total
3
Bedrooms Above Ground
3
Bedrooms Total
3
Exterior Finish
Stone, Wood
Fireplace Present
Yes
Basement Type
Full (Unfinished)
Basement Features
Building Heating Type
Forced air
Heating Fuel
Natural gas
Building Cooling Type
Central air conditioning

Utilities

Water
Cistern
Utility Sewer
Septic System

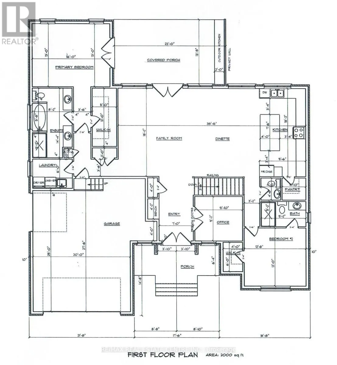
Room Layout

Foyer
Main level
3.66 m x 2.74 m
Bathroom
Main level
2.44 m x 1.83 m
Bathroom
Main level
1.83 m x 1.22 m
Office
Main level
3.66 m x 3.66 m
Mud room
Main level
3.23 m x 2.31 m
Dining room
Main level
3.66 m x 3.66 m
Great room
Main level
638 m x 5.49 m
Kitchen
Main level
6.38 m x 3.66 m
Primary Bedroom
Main level
4.57 m x 4.27 m
Bathroom
Main level
5.08 m x 3.02 m
Bedroom 2
Main level
3.66 m x 3.66 m
Bedroom 3
Main level
3.96 m x 3.66 m
Bedroom 3
Main level
3.66 m x 3.66 m

Location

Learn more about this property
Listing provided by:
RE/MAX REAL ESTATE CENTRE INC.
MLS® number:
X12733924
Agent:
Dan Caco
*Indicates required field
Name is required
Email is required
Please enter a valid phone number (e.g., 416-111-1111).