216 Arthur Street, West Nipissing, Ontario P2B 1E7

Listed for:
$389,999
4 beds
2 baths
Listed 6 days ago
House for rent: 216 Arthur Street, West Nipissing, Ontario P2B 1E7

View all 42 photos

About

Cross Streets: Queen St. ** Directions: From North Bay - Hwy 17, rt on Arthur to SOP, From Sudbury - Hwy 17, lt on Arthur to 216. Welcome to your new home! Walking into 216 Arthur Street you will feel its charming warmth right away. Lovingly maintained and ideally located close to downtown Sturgeon Falls, this 4-bedroom, 2-bathroom gem offers comfortable main floor living with a large bedroom, full bath, and convenient laundry facilities on the first level. Enjoy a carpet-free interior with updated vinyl plank flooring upstairs, perfect for families, pets, and allergy-friendly living. The open concept kitchen features a natural gas stove and modern fridge, opening up to the cozy wood stove in the family sitting room. The inviting wood stove adds warmth and peace of mind during northern power outages and cold, snowy winters. Upstairs, you'll find three spacious bedrooms and another full bathroom. A natural gas furnace and central air keep you comfortable all year-round. The basement offers good storage for canning and seasonal items, and the detached garage is ideal for a workshop or extra storage. Outside is a beautiful and private oasis. Relax and enjoy the two decks with two permanent gazebos, surrounded by mature trees, cedar hedges, and a fenced yard with raised garden beds. This home is a perfect blend of comfort, charm, and privacy, and is a true Sturgeon Falls treasure! Buyer to verify all measurements. (id:27476)

Property Highlights

MLS® Number
X12770434
Type
Single Family
Community Name
Sturgeon Falls
Ownership Type
Freehold
Land Size
73 x 99.8 FT|under 1/2 acre
Parking Space Total
4

Building

Building Type
House
Storeys
2.00
Square Footage
1500 - 2000 sqft
Bathrooms Total
2
Bedrooms Above Ground
4
Bedrooms Total
4
Amenities
Fireplace(s)
Exterior Finish
Vinyl siding
Fireplace Present
Yes
Basement Type
Full (Unfinished)
Basement Features
Building Heating Type
Forced air
Heating Fuel
Natural gas
Building Cooling Type
Central air conditioning

Utilities

Water
Municipal water
Utility Sewer
Sanitary sewer

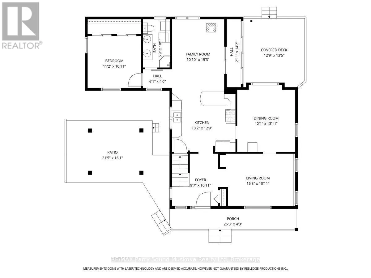
Room Layout

Bathroom
Second level
2.2 m x 2.3 m
Primary Bedroom
Second level
3.7 m x 3.8 m
Bedroom
Second level
3.4 m x 3.5 m
Bedroom
Second level
2.6 m x 3.1 m
Other
Basement
7.8 m x 7 m
Foyer
Main level
2.9 m x 3.3 m
Living room
Main level
4.8 m x 3.3 m
Kitchen
Main level
4 m x 3.9 m
Dining room
Main level
3.7 m x 4.2 m
Family room
Main level
3.3 m x 4.6 m
Bedroom
Main level
3.4 m x 3.3 m
Bathroom
Main level
1.8 m x 3 m

Location

Learn more about this property
Listing provided by:
RE/MAX Parry Sound Muskoka Realty Ltd
MLS® number:
X12770434
Agent:
Denise George
*Indicates required field
Name is required
Email is required
Please enter a valid phone number (e.g., 416-111-1111).

Community Spotlight: Homes For sale in Your Neighborhood