121 Kenton Street, West Perth, Ontario N0K 1N0

Listed for:
$594,900
2 beds
2 baths
Listed 112 days ago
House for rent: 121 Kenton Street, West Perth, Ontario N0K 1N0

View all 5 photos

Learn more about this property
Listing provided by:
RE/MAX TWIN CITY REALTY INC.
MLS® number:
X12409763
Agent:
Emil Burca
*Indicates required field
Name is required
Email is required
Please enter a valid phone number (e.g., 416-111-1111).

About

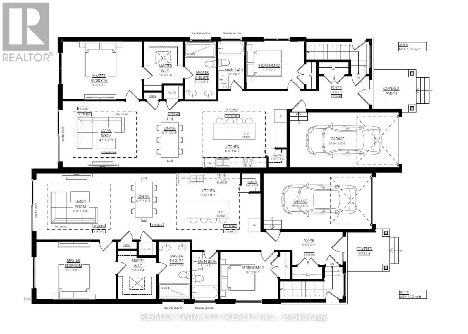
Cross Streets: CLAYTON STREET. ** Directions: HWY 8 west to Mitchell. TO BE BUILT! Amazing value in these bungalow semi detached homes on 150 deep, WALKOUT LOTS offering lots of options. Welcome to "The Theo", a beautiful combination of decorative siding and brick, finishes the craftsman façade with the balance of the exterior cladded in all brick, giving you excellent wind resistance and durability. Offering over 1350 sq ft of elegant, finished space, the layout comfortably accommodates two bedrooms and two bathrooms along with the kitchen, dinning room, and living room beautifully illuminated by a 10 x 8 three panel glass assembly overlooking the backyard; LVP flooring spans the entire home. The 9 ceilings bump up to 10 in the family room and kitchen with tray accents and pot lighting. The kitchen offers soft close cabinet doors and drawers, an 8 wide centre island with quartz countertop overhang and walk in pantry. Separating the open space from the primary suite is the conveniently located laundry, sitting central to the home. The generously sized primary bedroom is over 15 wide by over 11 deep. It also features a walk-in closet with a 4 piece ensuite; double vanity and oversized glass shower. A 4-piece main bathroom and second bedroom complete the main floor space. The foyer sits adjacent to an open to below staircase along with the option of a private side door entry, to be very useful in the case of future basement apartment. Customize the colours and finishes to your liking; take advantage today! This is an excellent retirement option to move to a beautiful countryside bungalow! (id:27476)

Property Highlights

MLS® Number
X12409763
Type
Single Family
Community Name
Mitchell
Ownership Type
Freehold
Land Size
29.5 x 149.6 FT
Parking Space Total
2

Building

Building Type
House
Storeys
1.00
Square Footage
1100 - 1500 sqft
Bathrooms Total
2
Bedrooms Above Ground
2
Bedrooms Total
2
Exterior Finish
Brick, Vinyl siding
Fireplace Present
No
Basement Type
N/A (Unfinished)
Basement Features
Building Heating Type
Forced air
Heating Fuel
Natural gas
Building Cooling Type
None

Utilities

Water
Municipal water
Utility Sewer
Sanitary sewer

Room Layout

Foyer
Main level
2.95 m x 1.96 m
Kitchen
Main level
4.88 m x 4.5 m
Dining room
Main level
3.84 m x 3.89 m
Living room
Main level
4.29 m x 3.89 m
Primary Bedroom
Main level
4.62 m x 3.38 m
Bathroom
Main level
1.85 m x 3.66 m
Bedroom 2
Main level
3.38 m x 2.77 m
Bathroom
Main level
1.85 m x 3.66 m

Location