59 Westfield Drive, Whitby, Ontario L1P 0E9

Listed for:
$1,599,999
7 beds
6 baths
Listed 2 days ago
House for rent: 59 Westfield Drive, Whitby, Ontario L1P 0E9

View all 38 photos

About

Cross Streets: Rossland Rd. E. / Lakeridge Rd. N. ** Directions: Des Newman Blvd. / Westfield Dr. Step into luxury and comfort in this stunning detached home featuring a legal basement apartment with its own private side entrance - perfect for large families, in-law/nanny suite or investors. Thoughtfully designed, the upper level features 5 large bedrooms, 3 full bathrooms, and a second-floor laundry room. The primary suite boasts a spa-like 5-piece ensuite and dual walk-in closets. Two bedrooms share a stylish Jack & Jill bathroom, one enjoys a semi-ensuite and another is sunlit with front yard views. The main floor features a private office, formal living and dining rooms with oversized windows, a 2-piece powder room, and a family room with a gas fireplace overlooking the backyard. The chefs kitchen offers quartz countertops, stainless steel appliances, a large island with breakfast bar and a sunlit breakfast area with walkout to the yard. The fully finished legal basement apartment features 2 bedrooms, a kitchen, a separate laundry room, a 3-piece bathroom, a private 2-piece ensuite, pot lights, large windows and open-concept living. A large cold room adds extra storage. Located minutes from Highways 401 and 412, schools, shopping, restaurants, and Des Newman WhitBEE Park. Listing photos were taken before the current tenant's occupancy. (id:27476)

Property Highlights

MLS® Number
E12789052
Type
Single Family
Community Name
Lynde Creek
Ownership Type
Freehold
Land Size
43 x 92.9 FT
Parking Space Total
4

Building

Building Type
House
Storeys
2.00
Square Footage
3000 - 3500 sqft
Bathrooms Total
6
Bedrooms Above Ground
5
Bedrooms Total
7
Exterior Finish
Brick, Stone
Fireplace Present
Yes
Basement Type
N/A, N/A
Basement Features
Apartment in basement, Separate entrance
Building Heating Type
Forced air
Heating Fuel
Natural gas
Building Cooling Type
Central air conditioning

Utilities

Water
Municipal water
Utility Sewer
Sanitary sewer

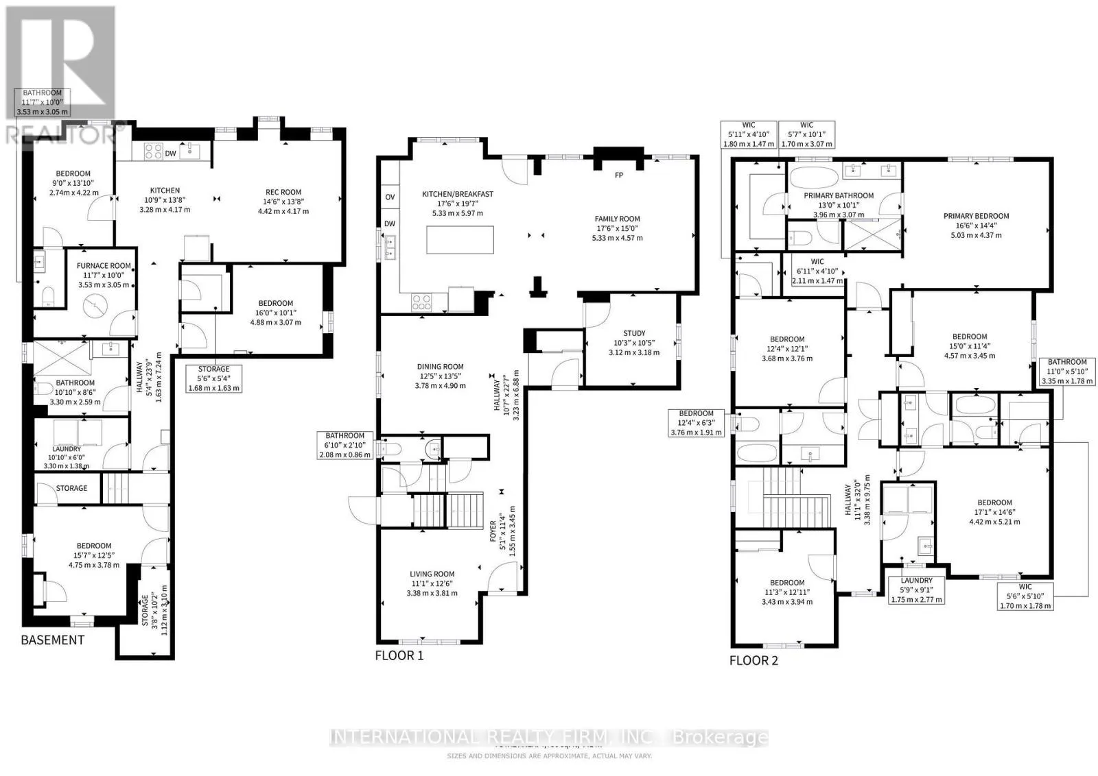
Room Layout

Primary Bedroom
Second level
5.03 m x 4.37 m
Bedroom 2
Second level
3.68 m x 3.76 m
Bedroom 3
Second level
3.43 m x 3.94 m
Bedroom 4
Second level
4.42 m x 5.21 m
Bedroom 5
Second level
4.57 m x 3.45 m
Bedroom
Basement
2.74 m x 4.22 m
Bedroom 2
Basement
4.88 m x 3.07 m
Kitchen
Basement
3.28 m x 4.17 m
Sitting room
Basement
4.42 m x 4.17 m
Cold room
Basement
4.75 m x 3.78 m
Living room
Main level
3.38 m x 3.81 m
Dining room
Main level
3.78 m x 4.9 m
Family room
Main level
5.33 m x 4.57 m
Office
Main level
3.12 m x 3.18 m
Kitchen
Main level
5.33 m x 5.97 m

Location

Learn more about this property
Listing provided by:
INTERNATIONAL REALTY FIRM, INC.
MLS® number:
E12789052
Agent:
Rahim Rajab Ali
*Indicates required field
Name is required
Email is required
Please enter a valid phone number (e.g., 416-111-1111).

Community Spotlight: Homes For sale in Your Neighborhood