807 Athol Street, Whitby, Ontario L1N 4A1

Listed for:
$1,389,000
5 beds
4 baths
Listed 3 days ago
House for rent: 807 Athol Street, Whitby, Ontario L1N 4A1

View all 5 photos

About

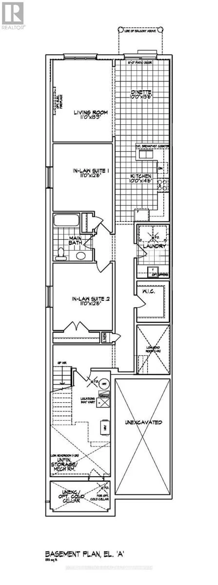
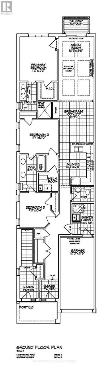
Cross Streets: Brock St S & Burns St E. ** Directions: From 401, head North on Brock, East onto Burns, north onto Athol. Plan ahead-invest in your future! This legal duplex, semi-detached style bungalow is finished top to bottom and offers exceptional versatility for homeowners and investors alike. The main floor features 9 ft ceilings, 3 spacious bedrooms, 3 bathrooms, and an open-concept kitchen with a walk-out to a deck overlooking Peel Park-complete with tennis courts, soccer fields, a baseball diamond, and more. Situated on a premium lot, the property also offers 4-car parking and separate utilities. The lower level includes a well-designed legal basement apt with 2 bedrooms, an open-concept living/family room, and a custom kitchen, along with a walk-out to a large backyard. Equipped with separate furnaces and meters, this home is ideal for multigenerational living or maximizing rental income. Live in one unit and rent the other, or lease both-a smart investment with strong income potential. Located in a highly desirable, family-friendly neighbourhood, just steps to parks, schools, shopping, restaurants, and everyday amenities, with easy access to Highways 401, 412, and 407 and public transit. (id:27476)

Property Highlights

MLS® Number
E12953650
Type
Single Family
Community Name
Downtown Whitby
Ownership Type
Freehold
Land Size
27 x 271 FT
Parking Space Total
4

Building

Building Type
House
Storeys
1.00
Square Footage
1500 - 2000 sqft
Bathrooms Total
4
Bedrooms Above Ground
3
Bedrooms Total
5
Amenities
Fireplace(s)
Exterior Finish
Brick, Stone
Fireplace Present
Yes
Basement Type
N/A (Finished), N/A, N/A, N/A
Basement Features
Apartment in basement, Walk out, Separate entrance
Building Heating Type
Forced air
Heating Fuel
Natural gas
Building Cooling Type
None

Utilities

Water
Municipal water
Utility Sewer
Sanitary sewer

Room Layout

Bedroom
Basement
3.35 m x 3.81 m
Kitchen
Basement
3.04 m x 4.41 m
Eating area
Basement
3.04 m x 4.72 m
Living room
Basement
3.35 m x 4.64 m
Bedroom
Basement
3.35 m x 3.81 m
Kitchen
Main level
3.12 m x 3.86 m
Eating area
Main level
3.12 m x 3.65 m
Great room
Main level
3.22 m x 5.68 m
Primary Bedroom
Main level
3.35 m x 3.96 m
Bedroom 2
Main level
3.45 m x 3.04 m
Bedroom 3
Main level
2.74 m x 3.15 m

Location

Learn more about this property
Listing provided by:
ROYAL HERITAGE REALTY LTD.
MLS® number:
E12953650
Agent:
Mike J. Fourcaudot
*Indicates required field
Name is required
Email is required
Please enter a valid phone number (e.g., 416-111-1111).