5977 Ninth Line, Whitchurch-Stouffville, Ontario L4A 7X4

Listed for:
$1,249,000
0 beds
0 baths
Listed 66 days ago
5977 Ninth Line, Whitchurch-Stouffville, Ontario L4A 7X4

View all 4 photos

Learn more about this property
Listing provided by:
INTERNATIONAL REALTY FIRM, INC.
MLS® number:
N12400241
Agent:
Ravi Gottipati
*Indicates required field
Name is required
Email is required
Please enter a valid phone number (e.g., 416-111-1111).

About

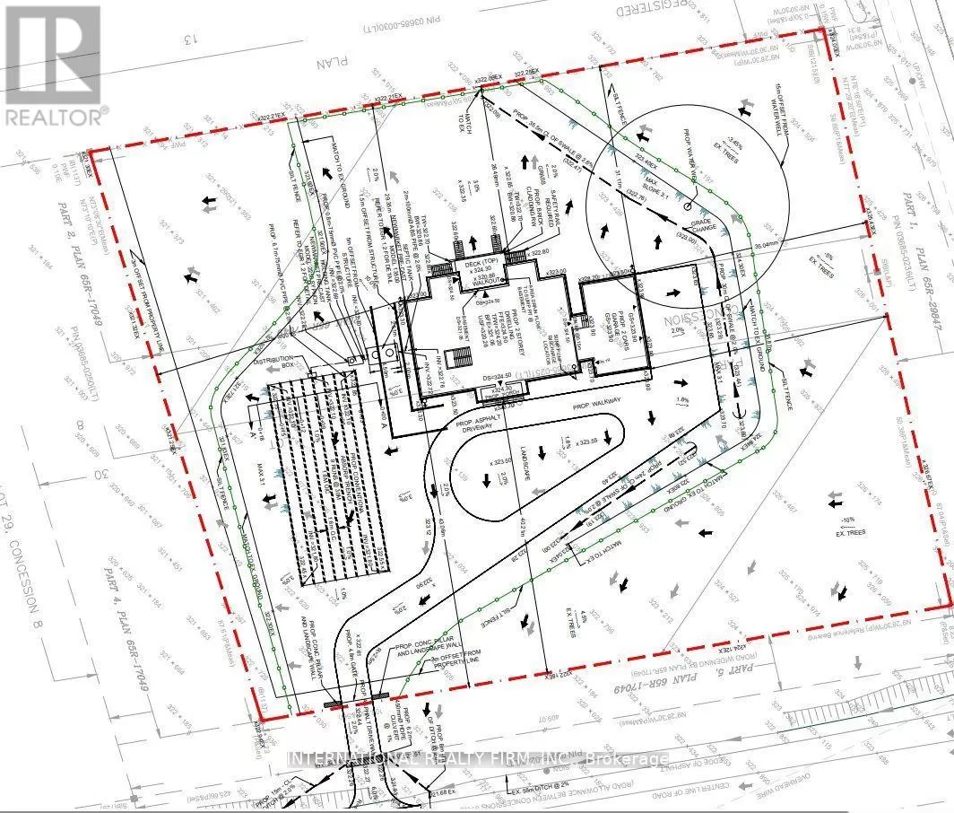
Cross Streets: Vivian/Ninth. ** Directions: Ninth/Vivian. A Beautiful double wide Estate Lot on a hilltop in scenic Vivian Forest - offering 338ft of frontage. Exclusive area consisting of significant estates yet close to urban conveniences of Newmarket, Stouffville, Major Highways, GO train and Southlake regional health Centre. Seller has completed various studies required to apply for a building permit including Topographic survey, Natural heritage evaluation, Site Grading plan, Septic plan, Butter nut assessment (no preserved butternuts on site) saving months of time and expense for the buyer. Two different concepts of building plans are also available to carry forward if desired. VTB financing available. (id:27476)

Property Highlights

MLS® Number
N12400241
Type
Vacant Land
Community Name
Rural Whitchurch-Stouffville
Land Size
338 x 285 FT|2 - 4.99 acres

Building

Square Footage
0 - 699 sqft
Fireplace Present
No
Basement Type
Basement Features
Building Heating Type
Heating Fuel
Building Cooling Type

Location