12 Churchill Drive S, Whitchurch-Stouffville, Ontario L4A 7X3

Listed for:
$899,000
0 beds
0 baths
Listed 40 days ago
12 Churchill Drive S, Whitchurch-Stouffville, Ontario L4A 7X3

View all 26 photos

Learn more about this property
Listing provided by:
RE/MAX ALL-STARS REALTY INC.
MLS® number:
N12459185
Agent:
Adrianne Parker
*Indicates required field
Name is required
Email is required
Please enter a valid phone number (e.g., 416-111-1111).

About

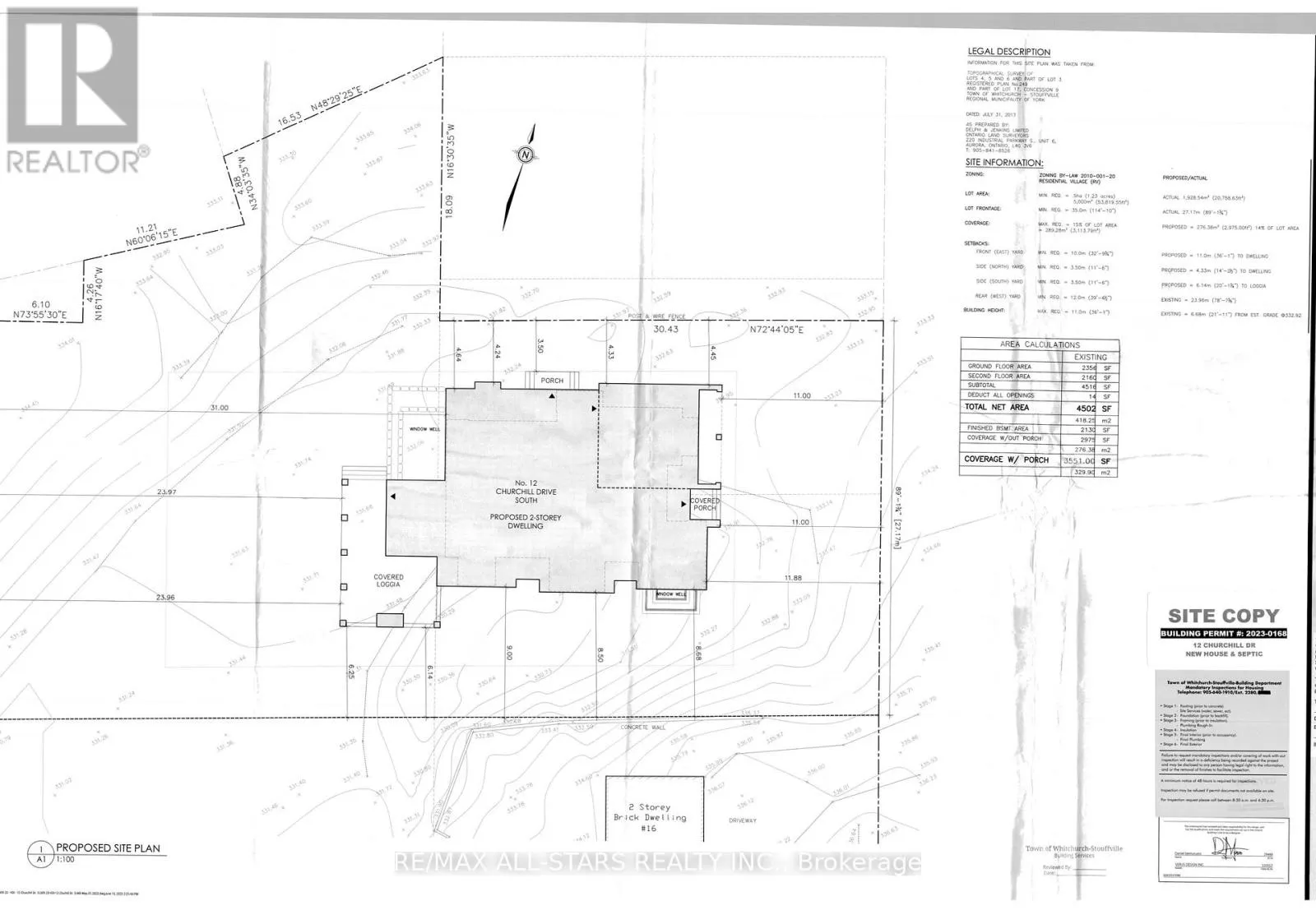
Cross Streets: Ninth Line / Churchill Drive. ** Directions: Ninth Ln & Churchill Dr. OFFERS ANYTIME! Rare building lot w water allocation & approved plans & permits to build UP TO to a 4500 square foot home steps from Musselmans Lake, a quiet lakeside community nestled in York Region -a hidden gem just minutes from the 404 and Stouffville amenities! Thisirregularly shaped 90 x 200 foot lot has had all the work done for you- almost 1/2 acre to create your dream home -all applicable development fees have been paid and architectural plans drawn and permits approved for a build of up to 4500 square foot home w possibillities to scale back and build a smaller home if desired. Most importantly, this lot comes with water allocation , meaning a water supply to the lot ,which is difficult to obtain in the area. Steps from the water, close to community areas like Coultice Park ,summer evenings on the patio at nearby Fishbone By the Lake -this is lakeside living minutes from every convenience. Why fight traffic to the cottage when tranquility is yours the second you walk in the door! **EXTRAS** Ideally located, 12 Churchill Drive is just 15 mins from the 404, 12 mins to the Stouffville GO Transit station, 12 mins to all of the large scale shopping available in Stouffville, all the restaurants, cafes & events. (id:27476)

Property Highlights

MLS® Number
N12459185
Type
Vacant Land
Community Name
Stouffville
Land Size
90 x 200 FT ; Irregular as per survey|1/2 - 1.99 acres

Building

Square Footage
0 - 699 sqft
Amenities
Park, Schools
Fireplace Present
No
Basement Type
Basement Features
Building Heating Type
Heating Fuel
Building Cooling Type

Utilities

Water
Municipal water
Utility Sewer
Septic System

Location

Community Spotlight: Homes For sale in Your Neighborhood