16 Golden Horseshoe Lane, Whitestone, Ontario P0G 1G0

Listed for:
$974,900
4 beds
2 baths
Listed 6 days ago
House for rent: 16 Golden Horseshoe Lane, Whitestone, Ontario P0G 1G0

View all 50 photos

About

Cross Streets: Hwy 124 & Hwy 520. ** Directions: Hwy 400 to Hwy 124 to Hwy 520 to Chur-lee Rd to Golden Horseshoe Lane. A stunning, 4 bedroom, 2 bathroom winterized/year-round home or cottage on large and desirable Whitestone Lake. Located on a private year-round maintained road. A full-service lake for plenty of boating activities, swimming, hours of exploring by motorboat and great fishing with bass, pickerel and pike. Move in ready, fully furnished/turn key family, cottage or investment property for rental. This waterfront home is great for entertaining, a large family/many friends. Bunkie for guest overflow and shed for garden tools. Mudroom. Windows bring in plenty of natural light, which brings warmth and coziness into the main floor living space. Main floor bedroom. Loft with 2 bedrooms. Walkout to deck with stairs to a meticulously landscaped yard. Basement with laundry, storage, bedroom and den/office to work from home. Enclosed sunroom for those rainy days or evenings to play a game of cards. Upgrades in the last few years include propane forced air, water filtration/UV system, stone, stairs, waterside deck, vinyl, siding, plumbing, and some windows. South exposure with sun all day. Plenty of property for family fun for kids and pets to play. Great sitting area at the waterside deck/ dock with deep water to jump in to cool off right from the dock. The cottage sits nicely perched on a hill for a fabulous view. Short drive into the town of Dunchurch for amenities, community center, restaurant, nursing station and supplies. 200/ year road fee. Click on the media arrow for virtual tour and 3-D imaging. (id:27476)

Property Highlights

MLS® Number
X12854918
Type
Single Family
Community Name
Hagerman
Ownership Type
Freehold
Land Size
100.2 x 236.1 FT|1/2 - 1.99 acres
Parking Space Total
5

Building

Building Type
House
Storeys
2.00
Square Footage
2500 - 3000 sqft
Bathrooms Total
2
Bedrooms Above Ground
4
Bedrooms Total
4
Exterior Finish
Vinyl siding
Fireplace Present
Yes
Basement Type
N/A (Finished)
Basement Features
Walk out
Building Heating Type
Forced air
Heating Fuel
Propane
Building Cooling Type
None

Utilities

Utility Sewer
Septic System

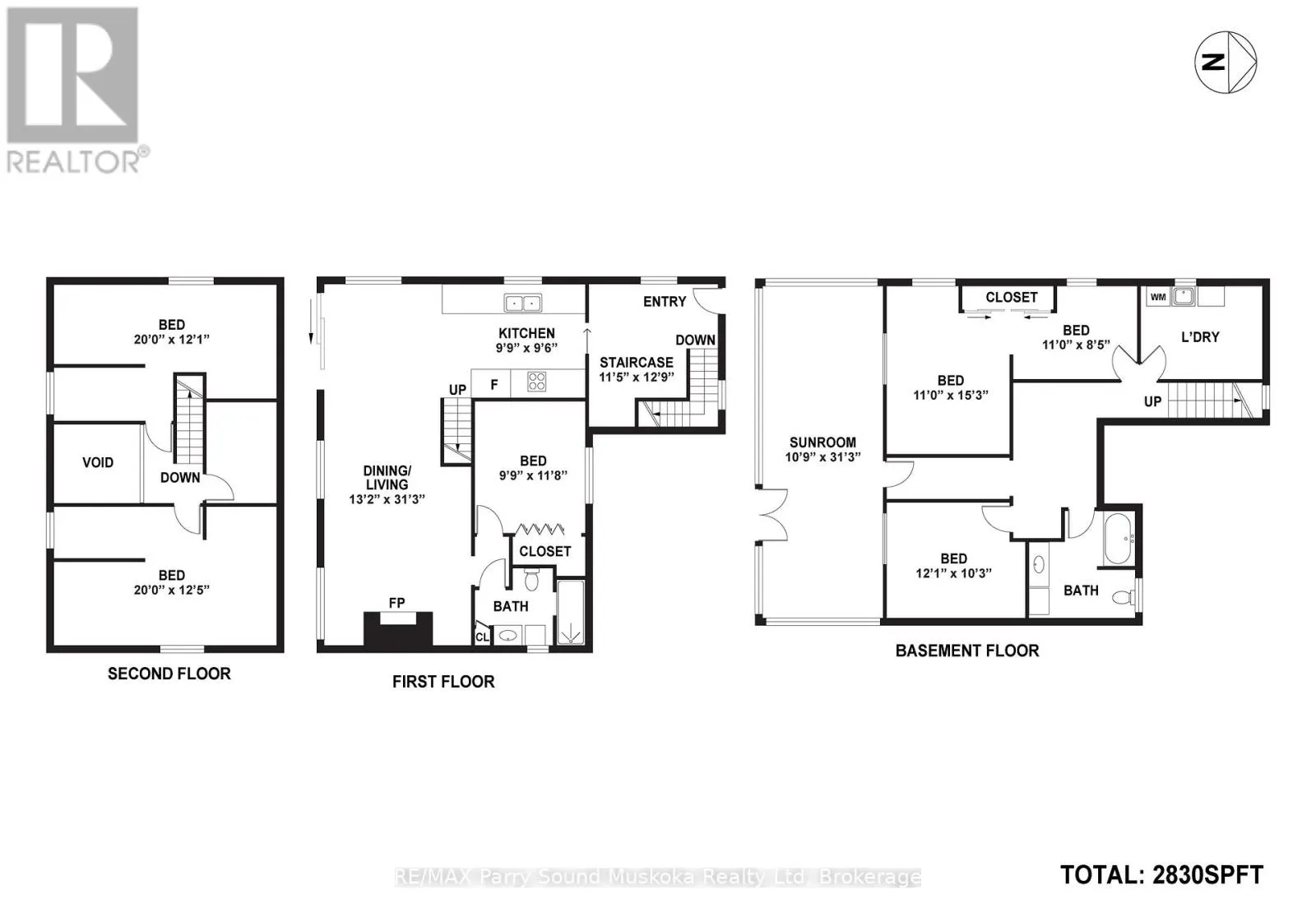
Room Layout

Bedroom
Second level
6.1 m x 3.81 m
Sitting room
Second level
2.47 m x 1.89 m
Bedroom
Second level
3.69 m x 6.1 m
Bedroom
Basement
3.69 m x 3.14 m
Family room
Basement
3.35 m x 4.66 m
Utility room
Basement
3.35 m x 2.59 m
Bathroom
Basement
2.99 m x 2.9 m
Mud room
Main level
3.5 m x 3.93 m
Kitchen
Main level
3.01 m x 2.93 m
Living room
Main level
4.02 m x 9.54 m
Bedroom
Main level
3.01 m x 3.6 m
Bathroom
Main level
3.02 m x 1.86 m

Location

Learn more about this property
Listing provided by:
RE/MAX Parry Sound Muskoka Realty Ltd
MLS® number:
X12854918
Agent:
Danielle Beitz
*Indicates required field
Name is required
Email is required
Please enter a valid phone number (e.g., 416-111-1111).

Community Spotlight: Homes For sale in Your Neighborhood