Lot 1 Moore Drive, Whitestone, Ontario P0A 1G0

Listed for:
$129,000
0 beds
0 baths
Listed 55 days ago
Lot 1 Moore Drive, Whitestone, Ontario P0A 1G0

View all 16 photos

About

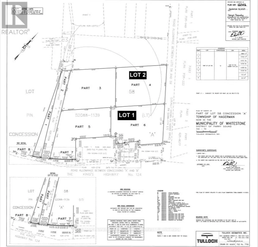
Cross Streets: HWY 124 to Moore Drive. ** Directions: Hwy 124 to Moore Dr. 2.5 acres building lot with a great location in Whitestone municipality. Situated close to the elementary school, a few minutes walk from the public beach, Duck Rock Resort and gas station, Whitestone nursing station LCBO and the municipal office to name a few of the amenities in the area. Located on a municipal road build your dream home or cottage country get away with year round access and enjoyment! This property is HST applicable. (id:27476)

Property Highlights

MLS® Number
X12908766
Type
Vacant Land
Community Name
Hagerman
Land Size
295 FT|2 - 4.99 acres

Building

Amenities
Hospital
Fireplace Present
No
Basement Type
Basement Features
Building Heating Type
Heating Fuel
Building Cooling Type

Location

Learn more about this property
Listing provided by:
RE/MAX Parry Sound Muskoka Realty Ltd
MLS® number:
X12908766
Agent:
Greg Antuchiewicz
*Indicates required field
Name is required
Email is required
Please enter a valid phone number (e.g., 416-111-1111).