150 Park West Unit# 816, Windsor, Ontario N9A 7A2

Listed for:
$1,750
2 beds
1 baths
Listed 32 days ago
Apartment for rent: 150 Park West Unit# 816, Windsor, Ontario N9A 7A2

View all 25 photos

Learn more about this property
Listing provided by:
REMAX PREFERRED REALTY LTD. - 584
MLS® number:
25026313
Agent:
Mary Hrovat
*Indicates required field
Name is required
Email is required
Please enter a valid phone number (e.g., 416-111-1111).

About

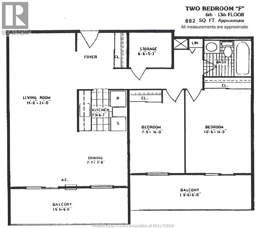
AT THE CORNER OF VICTORIA AVE & PARK ST WEST BUILDING’S RULES AND REGS ARE AVAILABLE UPON REQUEST TO MARY HROVAT@REMAX.NET OR TEXT 519-980-1734 THIS 2 BEDROOM, 1 BATH, 8TH FLOOR CONDO FOR RENT IN VICTORIA PARK PLACE CONDOMINIUMS IN DOWNTOWN WINDSOR FEATURES BEAUTIFUL LAMINATE FLOORING, CERAMIC TILE, NEW LIGHT FIXTURES, ENSUITE STORAGE AND TWO BALCONIES WITH A WESTERLY SUNSET VIEW, OVERLOOKING THE NEW GORDIE HOWE INTERNATIONAL BRIDGE. A SECOND STORAGE ROOM IS LOCATED ON THE PARKING LEVEL AND THE ENTIRE SUITE WAS PROFESSIONALLY PAINTED IN NOVEMBER 2025. THE SPACIOUS LIVINGROOM IS 24 FEET LONG & THERE IS A SEPARATE DINING AREA. KITCHEN INCLUDES THE FRIDGE, STOVE AND SLEEVE AIR CONDITIONER. BOTH BEDRMS HAVE CLOSETS. THIS BUILDING OFFERS A SALT WATER POOL, 24 HOUR MANNED SECURITY, GYM, SCENIC GLASS ELEVATORS, INDOOR HOT TUB, BILLIARDS ROOM, 5TH FLOOR DECK WITH BBQ, EVENT ROOM, PAY PER USE LAUNDRYRM & ALLOWS UP TO 2 PETS UNDER 20LBS, SUBJECT TO FURTHER RESTRICTIONS. BEST OF ALL, THE LANDLORDS ARE WONDERFUL!!! TENANT TO PAY HYDRO INCLUDING ELECTRIC HEAT. 1 PARKING SPACE IF SPECIFIED WITHIN OFFER TO LEASE. ALL MEASUREMENTS ARE APPROXIMATE. (id:27476)

Property Highlights

MLS® Number
25026313
Type
Single Family
Maintenance Fee
0.00
Ownership Type
Condominium/Strata
Land Size
X

Building

Building Type
Apartment
Square Footage
882 sqft
Bathrooms Total
1
Bedrooms Above Ground
2
Bedrooms Total
2
Fireplace Present
No
Basement Type
Basement Features
Building Heating Type
Baseboard heaters
Heating Fuel
Electric
Building Cooling Type

Location

Street Spotlight - For rent