11646 Tecumseh Road Unit# 300, Windsor, Ontario N8N 1L7

Listed for:
$1,900
1 beds
1 baths
Listed 103 days ago
Apartment for rent: 11646 Tecumseh Road Unit# 300, Windsor, Ontario N8N 1L7

View all 25 photos

About

The perfect place to call home in a suite that’s never been occupied! East Windsor’s newest luxury apartment building - Banwell Court by Horizons. Spacious, open-concept layouts, thoughtfully designed for everyday living. Stylish modern finishes include luxury vinyl flooring, quartz countertops and stainless steel Whirlpool appliances. Convenient In-suite laundry and garbage chutes on every floor. Generous personal balcony or patio with each unit. Building amenities include a well-equipped Gym, Party Room and Lounge area. Welcoming lobby, elevators, and wide bright hallways .. you will be proud to come home every day. Parking and Storage lockers available for additional charge. A+ location next to Metro, Shoppers, bus stops, medical, restaurants, parks, banks, schools, and major employers such as NextStar, Amazon, New hospital and Ninth Group. Sub-metered utilities, geothermal heating/cooling and energy-efficient designs ensure comfort and cost savings year-round. Quick access to EC Row Express, Hwy 401 and Airport. Fully furnished options available. Layouts may differ from photos. BONUS: INTERNET INCLUDED! inquire about 1-2 month free incentives! Various units available to view. Call now! (id:27476)

Property Highlights

MLS® Number
25029163
Type
Single Family
Maintenance Fee
0.00
Land Size
X

Building

Building Type
Apartment
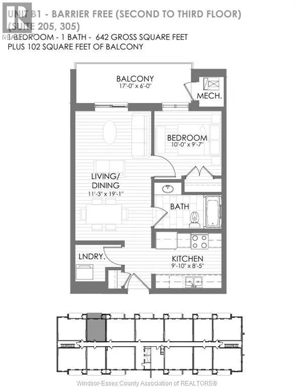
Square Footage
642 sqft
Bathrooms Total
1
Bedrooms Above Ground
1
Bedrooms Total
1
Exterior Finish
Aluminum siding, Brick, Stucco
Fireplace Present
No
Basement Type
Basement Features
Building Heating Type
Heating Fuel
Electric
Building Cooling Type

Location

Learn more about this property
Listing provided by:
JUMP REALTY INC.
MLS® number:
25029163
Agent:
Jessica Spiteri
*Indicates required field
Name is required
Email is required
Please enter a valid phone number (e.g., 416-111-1111).

Street Spotlight - For rent