75 Riverside East Unit# 406, Windsor, Ontario N9A 7C4

Listed for:
$1,900
1 beds
2 baths
Listed 26 days ago
Apartment for rent: 75 Riverside East Unit# 406, Windsor, Ontario N9A 7C4

View all 19 photos

About

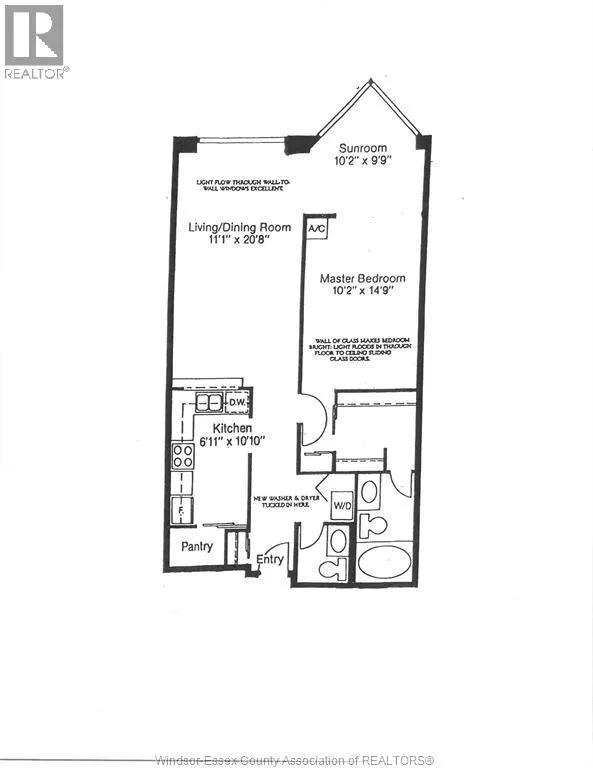
Furnished rental unit #406 at sought after 75 Riverside condominium in downtown Windsor. Features an East facing Detroit River view from the full wall of windows that captures the warm morning sun. Consisting of a spacious 830 S.F. with laminate flooring throughout the unit. Plenty of kitchen cabinets with appliances and includes a pantry, 1 bedroom with 1.5 baths including a soaker tub in en-suite bath, huge walk-in master closet, sunroom (or at home office), in-suite laundry with appliances, assigned underground parking, storage locker. Includes utilities, 5 appliances and use of the building 3 rd. floor exercise room, outdoor B.B.Q., and roof top garden. Immediate possession available. (id:27476)

Property Highlights

MLS® Number
26001482
Type
Single Family
Maintenance Fee
0.00
Ownership Type
Condominium/Strata
Land Size
0 X 0.00

Building

Building Type
Apartment
Square Footage
830 sqft
Bathrooms Total
2
Bedrooms Above Ground
1
Bedrooms Total
1
Exterior Finish
Brick
Fireplace Present
No
Basement Type
Basement Features
Building Heating Type
Forced air, Furnace
Heating Fuel
Natural gas
Building Cooling Type
Central air conditioning

Location

Learn more about this property
Listing provided by:
REMAX CAPITAL DIAMOND REALTY
MLS® number:
26001482
Agent:
Neil Jones, Asa
*Indicates required field
Name is required
Email is required
Please enter a valid phone number (e.g., 416-111-1111).

Street Spotlight - For rent