574252 Old School Line, Woodstock, Ontario N4S 7V8

Listed for:
$899,900
5 beds
4 baths
Listed 14 days ago
House for rent: 574252 Old School Line, Woodstock, Ontario N4S 7V8

View all 38 photos

Learn more about this property
Listing provided by:
Revel Realty Inc Brokerage
MLS® number:
X12498634
Agent:
Katherine Clarke
*Indicates required field
Name is required
Email is required
Please enter a valid phone number (e.g., 416-111-1111).

About

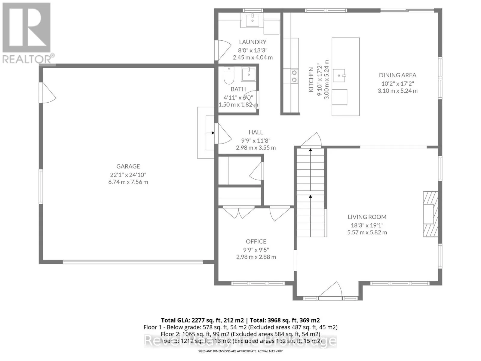
Cross Streets: Old School Line and Hwy 59. ** Directions: South on Hwy 59, turn slight right onto Old School Line, property is corner lot. Welcome to your dream home, a stunning new build by Everest Homes on nearly half an acre, this beautiful 4-bedroom + den, 4 bath home offers over 3000 sq. ft of refined living space. A grand entrance welcomes you to sun-filled rooms with custom blinds, rich hardwood floors, a sophisticated office space and elegant living and dining areas. The kitchen impresses with quartz counter tops, custom cabinetry and shelving, stainless steel appliances and pot lighting - perfect for entertaining and everyday living. An oak staircase with iron pickets leads to a serene primary suite featuring a spa-like ensuite with a glass rain shower, walk-in closets and a private sitting room. The finished basement provides an elevated extension of the home with a spacious recreation area and extra room for flexibility. Outside enjoy a covered front porch, backyard deck and an insulated garage with car-wash hook-up. Located minutes from major highways, top employers and all amenities, this is luxury living at its finest with country charm. (id:27476)

Property Highlights

MLS® Number
X12498634
Type
Single Family
Community Name
Woodstock - South
Ownership Type
Freehold
Land Size
262 x 184.8 Acre|under 1/2 acre
Parking Space Total
6

Building

Building Type
House
Storeys
2.00
Square Footage
2500 - 3000 sqft
Bathrooms Total
4
Bedrooms Above Ground
4
Bedrooms Total
5
Exterior Finish
Stone, Wood
Fireplace Present
Yes
Basement Type
N/A (Finished)
Basement Features
Building Heating Type
Forced air
Heating Fuel
Propane
Building Cooling Type
Central air conditioning, Ventilation system

Utilities

Water
Drilled Well
Utility Sewer
Septic System

Location

Community Spotlight: Homes For sale in Your Neighborhood