85 Bonds Corner Unit# 7, Woodstock, Ontario N4S 7V9

Listed for:
$525,900
0 beds
0 baths
Listed 120 days ago
85 Bonds Corner Unit# 7, Woodstock, Ontario N4S 7V9

View all 7 photos

About

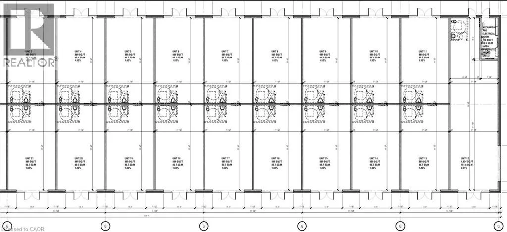
Welcome to Bonds Corner Plaza, ideally located in Woodstock directly across from Toyota. This stunning pre-construction commercial unit is scheduled for completion by April 30, 2026. Whether you are looking to open your own business or add a strong asset to your investment portfolio, this unit offers excellent potential with solid rental demand in the area. Featuring a prime high-traffic location and convenient access to Highway 401, nearby subdivisions, industrial facilities, and major employment hubs, this is an exceptional opportunity you won’t want to miss. (id:27476)

Property Highlights

MLS® Number
40799375
Type
Retail
Maintenance Fee
0.00
Ownership Type
Condominium
Land Size
Unknown

Building

Storeys
1.00
Square Footage
869 sqft
Fireplace Present
No
Basement Type
None
Basement Features
Building Heating Type
Heating Fuel
Building Cooling Type

Utilities

Water
Municipal water
Utility Sewer
Municipal sewage system

Location

Learn more about this property
Listing provided by:
HOMELIFE MIRACLE REALTY MISSISSAUGA
MLS® number:
40799375
Agent:
David Parsons
*Indicates required field
Name is required
Email is required
Please enter a valid phone number (e.g., 416-111-1111).

Street Spotlight - For sale