43 - 80 Hiawatha Road, Woodstock, Ontario N4T 1R1

Listed for:
$350,000
3 beds
2 baths
Listed 20 days ago
Row / Townhouse for rent: 43 - 80 Hiawatha Road, Woodstock, Ontario N4T 1R1

View all 5 photos

About

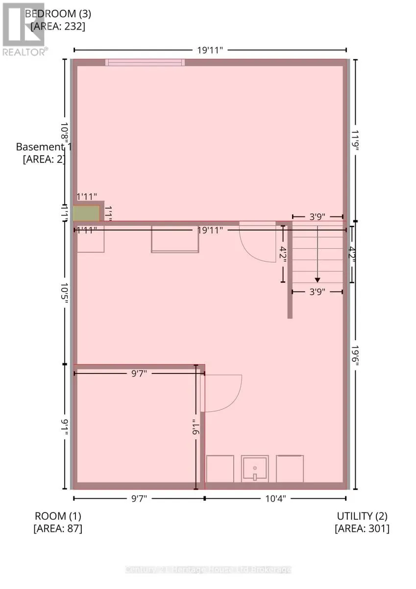
Cross Streets: Springbank & Conestoga. ** Directions: North on Springbank west on Hiawatha. Welcome to 80 Hiawatha a low-maintenance townhouse located on a quiet, family-friendly street. The spacious main floor features a functional kitchen with adjoining dining area, a bright living room, a convenient 2-piece bathroom, and a walkout to a private deck-perfect for relaxing or entertaining. Upstairs offers three generously sized bedrooms and a full 4-piecebathroom. The finished basement includes a large laundry room and a versatile recreation room. An ideal opportunity for first-time home buyers, investors, or those looking to downsize without compromise. Close to 401, Pittock, schools, and grocery store! (id:27476)

Property Highlights

MLS® Number
X12730246
Type
Single Family
Community Name
Woodstock - North
Maintenance Fee
370.00
Ownership Type
Condominium/Strata
Parking Space Total
1

Building

Building Type
Row / Townhouse
Storeys
2.00
Square Footage
1000 - 1199 sqft
Bathrooms Total
2
Bedrooms Above Ground
3
Bedrooms Total
3
Amenities
Fireplace(s)
Exterior Finish
Aluminum siding, Brick
Fireplace Present
Yes
Basement Type
N/A (Partially finished)
Basement Features
Building Heating Type
Forced air
Heating Fuel
Natural gas
Building Cooling Type
Central air conditioning

Location

Learn more about this property
Listing provided by:
Century 21 Heritage House Ltd Brokerage
MLS® number:
X12730246
Agent:
Dylan Lazarus
*Indicates required field
Name is required
Email is required
Please enter a valid phone number (e.g., 416-111-1111).

Community Spotlight: Homes For sale in Your Neighborhood