1344 Dundas Street E, Woodstock, Ontario N4S 7V9

Listed for:
$20
0 beds
2 baths
Listed 61 days ago
1344 Dundas Street E, Woodstock, Ontario N4S 7V9

View all 12 photos

About

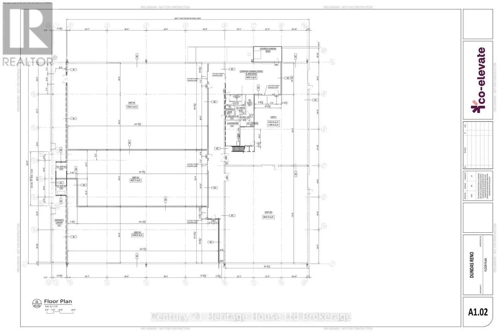
Dundas Street & Woodall Way High-Exposure Commercial Opportunity - Woodstock, ON, Rare opportunity to acquire a standalone commercial building totaling over 29,000 SF on a 2.732-acre site with 208 ft of frontage on Dundas Street, Woodstock's primary commercial corridor. Located at a signalized intersection just off Hwy 401 and adjacent to Toyota Motor Manufacturing Canada, offering excellent visibility and access.Zoned M3-11, permitting a wide range of retail, commercial, warehousing, and light industrial uses. 24,000 SF of divisible space available. Building features include 18' clear height, 1 loading dock, 2 grade-level doors, 200A | 600V 3-phase power, sprinklered, LED lighting, pylon signage, and ~1 acre of fenced, secured outdoor storage. Surrounded by established industrial and retail users in a rapidly growing market.Ideal for owner-users, investors, or redevelopment. (id:27476)

Property Highlights

MLS® Number
X12763830
Type
Retail
Community Name
Woodstock - South
Land Size
207.46 x 579 FT

Building

Square Footage
24000 sqft
Bathrooms Total
2
Fireplace Present
No
Basement Type
Basement Features
Building Heating Type
Forced air
Heating Fuel
Natural gas
Building Cooling Type
Fully air conditioned

Utilities

Water
Municipal water

Location

Learn more about this property
Listing provided by:
Century 21 Heritage House Ltd Brokerage
MLS® number:
X12763830
Agent:
Franco Castellucci
*Indicates required field
Name is required
Email is required
Please enter a valid phone number (e.g., 416-111-1111).

Street Spotlight - For lease