311 Kading Crescent, Woodstock, Ontario N4S 0G6

Listed for:
$567,410
3 beds
3 baths
Listed 1 day ago
Row / Townhouse for rent: 311 Kading Crescent, Woodstock, Ontario N4S 0G6

View all 16 photos

About

Cross Streets: Anderson and Gillespie. ** Directions: Mill St south to Sixth Ave. turn right, follow to Anderson turn left. Kading is on the right. NOW is the time to buy your new home. This FOXFORD model, a beautiful 2 storey Townhome, with panoramic views overlooking the City and walk out basement offering 1459 sq ft of finished living space plus potential to finish the walk out basement. NO lot premiums charged at this time. YOU CAN afford to make this NEW home the home of. Our new neighbourhood is now open and we offer a Low deposit structure making purchasing easier than ever. We offer open concept homes that are modern, spacious and elegant. We are a local renowned builder that includes upscale finishes, at no additional cost, including hardwood, ceramic floors, 9' ceilings, quartz countertops, deck and much more. Come out, explore and see what the excitement is all about - our fully furnished model homes at 321 Kading Cres. and 331 Anderson St.is open Sat/Sun 1-4pm or by appointment. Located in the SW corner of Woodstock with easy access to all amenities and 401 corridor. We also offer quality built detached homes designed with you in mind 1600+ to over 2000 sq. ft./quality built freehold 2 storey Urban and walk out basement townhomes starting at $565,399. We also include central air, ERV, large windows for an abundance of natural light. Walk out lots, lots overlooking the pond and some with no rear neighbours. We have NO HIDDEN FEES. No Development Fees, No Lot Premiums at this time. Tarion Reg., Survey + much more all at NO additional cost.New Build taxes to be assessed. Legal description and lot size to be finalized. The Price advertised on this Listing does not include HST and reflects the Proposed New Enhanced HST Rebate for New Construction Homes to be available to Qualified Purchasers for their use as a Primary Residence to take effect on Agreements signed from April 1, 2026 until March 31, 2027. Other conditions may apply in this newly announced government HST program. Please Contact Builders Rep. for more information. Interior photos of builder's Newport model home. (id:27476)

Property Highlights

MLS® Number
X13004172
Type
Single Family
Community Name
Woodstock - South
Ownership Type
Freehold
Land Size
30 x 100 FT
Parking Space Total
2

Building

Building Type
Row / Townhouse
Storeys
2.00
Square Footage
1100 - 1500 sqft
Bathrooms Total
3
Bedrooms Above Ground
3
Bedrooms Total
3
Amenities
Hospital, Public Transit, Place of Worship
Exterior Finish
Brick, Vinyl siding
Fireplace Present
No
Basement Type
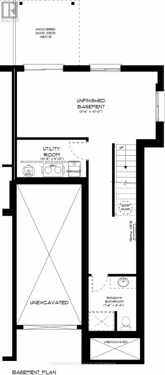
N/A (Unfinished), Full, N/A
Basement Features
Walk out
Building Heating Type
Forced air
Heating Fuel
Natural gas
Building Cooling Type
Central air conditioning

Utilities

Water
Municipal water
Utility Sewer
Sanitary sewer

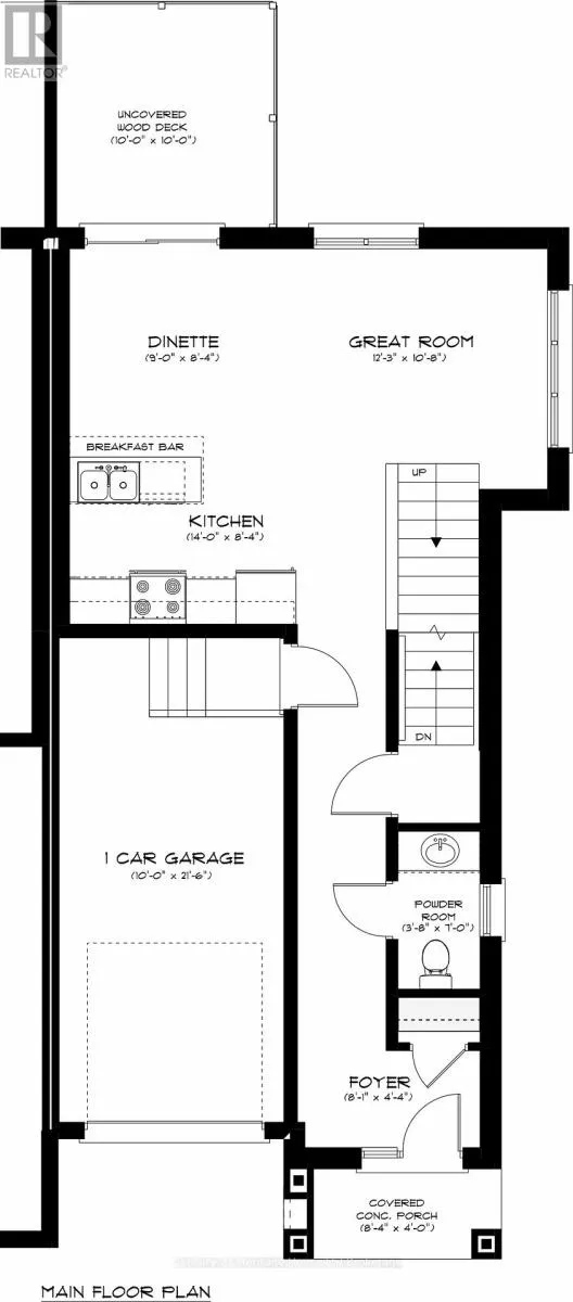
Room Layout

Primary Bedroom
Second level
3.69 m x 3.44 m
Bedroom 2
Second level
2.86 m x 3.71 m
Bedroom 3
Second level
2.86 m x 3.71 m
Bathroom
Second level
1.61 m x 2.83 m
Laundry room
Second level
1.52 m x 2.4 m
Foyer
Main level
2.4 m x 1.34 m
Bathroom
Main level
2.13 m x 1.06 m
Great room
Main level
3.62 m x 2.95 m
Kitchen
Main level
3.87 m x 2.8 m
Dining room
Main level
3.04 m x 2.34 m

Location

Learn more about this property
Listing provided by:
Century 21 Heritage House Ltd Brokerage
MLS® number:
X13004172
Agent:
Fran Wicklum
*Indicates required field
Name is required
Email is required
Please enter a valid phone number (e.g., 416-111-1111).