5 - 25 Church Street W, Woolwich, Ontario N3B 1M2

Listed for:
$18
0 beds
0 baths
Listed 43 days ago
5 - 25 Church Street W, Woolwich, Ontario N3B 1M2

View all 3 photos

Learn more about this property
Listing provided by:
RE/MAX TWIN CITY REALTY INC.
MLS® number:
X12450364
Agent:
David Schooley
*Indicates required field
Name is required
Email is required
Please enter a valid phone number (e.g., 416-111-1111).

About

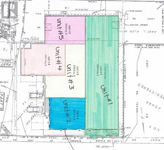
Arthur Street Prime Commercial Lease Opportunity in Elmira An exciting opportunity is available in one of Elmiras most visible and high-traffic locations. This commercial property, zoned C1 for maximum flexibility, is currently undergoing modern renovations that will transform the space into a fresh and contemporary environment. The upgrades are designed to enhance both the interior and exterior, creating an inviting setting for retail, office, restaurant, fitness, medical, and a wide range of professional uses. A key advantage of this property is that it offers multiple unit sizes and configurations, making it adaptable to businesses both large and small. Its excellent street exposure provides outstanding visibility, while the thriving commercial corridor ensures consistent traffic and a supportive business environment. Leasing now allows tenants to secure space in this prime location as the renovations progress, with the opportunity to select a size and layout best suited to their needs. (id:27476)

Property Highlights

MLS® Number
X12450364
Type
Retail
Land Size
Unit=170.02 FT

Building

Square Footage
1620 sqft
Fireplace Present
No
Basement Type
Basement Features
Building Heating Type
Other
Heating Fuel
Building Cooling Type
None

Utilities

Water
Municipal water

Location

Street Spotlight - For lease