Lot 11 Kelly Drive, Zorra, Ontario N0M 2M0

Listed for:
$939,999
5 beds
3 baths
Listed 58 days ago
House for rent: Lot 11 Kelly Drive, Zorra, Ontario N0M 2M0

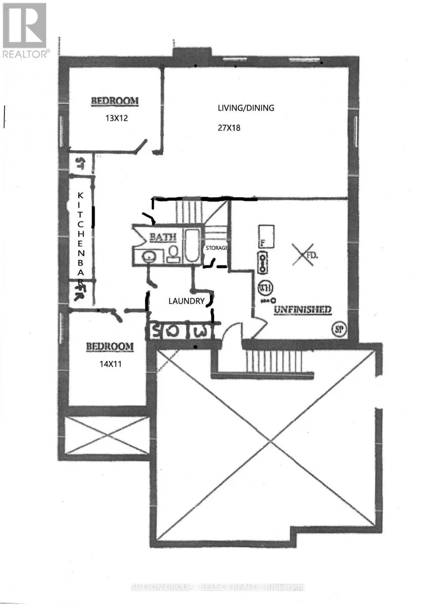
View all 29 photos

Learn more about this property
Listing provided by:
SUTTON GROUP - SELECT REALTY
MLS® number:
X12419438
Agent:
Lynne Mallette
*Indicates required field
Name is required
Email is required
Please enter a valid phone number (e.g., 416-111-1111).

About

Cross Streets: 15 line and Dundas st. ** Directions: Off 15 line to Ferris to Kelly drive. LAST 55FT LOT LEFT! Incredible oversized 3 CAR GARAGE open concept 3 bedrm one floor model with SECOND ENTRANCE from garage to fully functioning FINISHED basement with kitchenette, 2 bedrms, 4pc bathroom and HUGE familyrm situated on generous pool sized lot (55ft x 127ft) with rod iron fence across back and trees planted. You will be impressed the moment you enter the front door with the finishes throughout this home including a Designer kitchen with breakfast bar island, quartz counter tops, valance lighting and backsplash. Great room with upgraded gas fireplace. Master bedroom suite with walk in closet and luxury ensuite with glass shower. Nicely sized additional bedrooms with close access to 4pc bath. Main floor laundry with garage access. Loads of potlights included! 200 AMP service. Approx 2800sqft finished. Rich hardwoods throughout main living areas, tile in laundry and baths, solid surface counter tops, central air, concrete driveway, upgraded stone on front elevation...the list goes on! Flexible closing - quick close anytime if needed! Lets make a deal! View today! (id:27476)

Property Highlights

MLS® Number
X12419438
Type
Single Family
Community Name
Thamesford
Ownership Type
Freehold
Land Size
55.2 x 127.3 FT|under 1/2 acre
Parking Space Total
9

Building

Building Type
House
Storeys
1.00
Square Footage
1500 - 2000 sqft
Bathrooms Total
3
Bedrooms Above Ground
3
Bedrooms Total
5
Amenities
Fireplace(s) Schools, Place of Worship
Exterior Finish
Stone, Brick
Fireplace Present
Yes
Basement Type
Full (Finished)
Basement Features
Building Heating Type
Forced air
Heating Fuel
Natural gas
Building Cooling Type
Central air conditioning

Utilities

Water
Municipal water
Utility Sewer
Sanitary sewer

Room Layout

Bedroom 4
Lower level
4.27 m x 3.35 m
Bedroom 5
Lower level
3.96 m x 3.66 m
Recreational, Games room
Lower level
8.23 m x 5.49 m
Kitchen
Lower level
3.35 m x 4.87 m
Bathroom
Lower level
Measurements not available
Laundry room
Lower level
Measurements not available
Great room
Main level
4.3 m x 5.486 m
Kitchen
Main level
3.38 m x 3.66 m
Dining room
Main level
3.048 m x 3.38 m
Great room
Main level
4.45 m x 4.81 m
Laundry room
Main level
Measurements not available
Primary Bedroom
Main level
4.45 m x 4.8 m
Bedroom 2
Main level
3.66 m x 3.66 m
Bedroom 3
Main level
3.078 m x 3.048 m
Bathroom
Main level
Measurements not available
Bathroom
Main level
Measurements not available

Location