7 East Bay Drive, Cardigan, Prince Edward Island C0A 1G0

Listed for:
$519,000
3 beds
2 baths
Listed 22 days ago
House for rent: 7 East Bay Drive, Cardigan, Prince Edward Island C0A 1G0

View all 5 photos

About

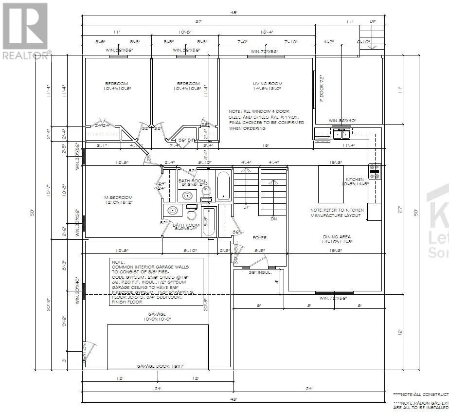
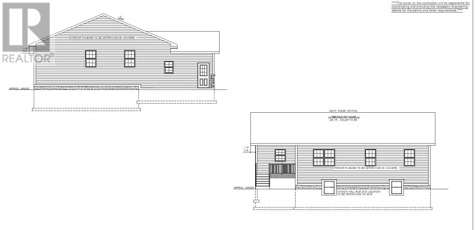
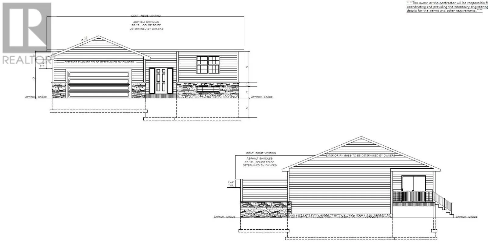
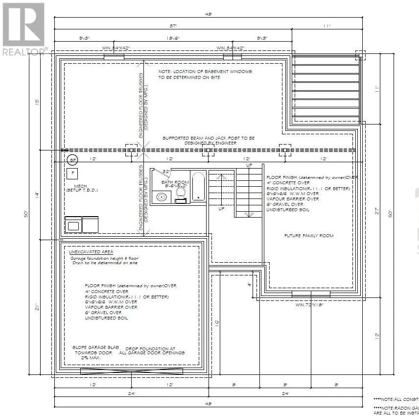
Georgetown Rd to Power Rd to Kingsway Dr to East Bay Dr When Viewing This Property On Realtor.ca Please Click On The Multimedia or Virtual Tour Link For More Property Info. Modern New Construction | 1,457 Sq. Ft. | Covered Deck & Room to Grow This beautifully built new construction home offers 1,457 sq. ft. of thoughtfully designed living space with stylish, modern finishes throughout. Electric heating provides consistent comfort, while waterproof laminate flooring flows through the main living areas and durable vinyl tile flooring finishes the bathrooms for a clean, practical touch. The kitchen is both functional and elegant, featuring solid surface countertops, a glass tile backsplash, and painted MDF cabinetry that offers plenty of storage. The inviting living room is highlighted by an electric fireplace, creating a warm and welcoming space to relax or entertain guests. Step outside to the covered back deck?an ideal spot to enjoy sunny afternoons, host summer barbecues, or unwind at the end of the day. The unfinished basement provides excellent storage space and offers incredible potential for future development, giving you plenty of room to grow and customize the home to suit your needs. (id:27476)

Property Highlights

MLS® Number
202604243
Type
Single Family
Community Name
Cardigan
Ownership Type
Freehold
Land Size
1/2 - 1 acre

Building

Building Type
House
Bathrooms Total
2
Bedrooms Above Ground
3
Bedrooms Total
3
Amenities
Golf Course, Shopping
Exterior Finish
Vinyl
Fireplace Present
No
Basement Type
Full (Unfinished)
Basement Features
Building Heating Type
Baseboard heaters
Heating Fuel
Electric
Building Cooling Type
Air exchanger

Utilities

Water
Drilled Well
Utility Sewer
Septic System

Room Layout

Living room
Main level
13x14.8
Kitchen
Main level
14.9x10.8
Dining room
Main level
11.3x14.1
Primary Bedroom
Main level
15.2x12
Ensuite (# pieces 2-6)
Main level
5.4x8.6 4pc
Bedroom
Main level
10.8x10.4
Bedroom
Main level
10.8x10.4
Bath (# pieces 1-6)
Main level
5.2x8.6 4pc

Location

Learn more about this property
Listing provided by:
PG DIRECT REALTY LTD.
MLS® number:
202604243
Agent:
Jonathan David
*Indicates required field
Name is required
Email is required
Please enter a valid phone number (e.g., 416-111-1111).

Community Spotlight: Homes For sale in Your Neighborhood