32 Anne Avenue, Charlottetown, Prince Edward Island C1C 0T1

Listed for:
$505,000
3 beds
2 baths
Listed 95 days ago
House for rent: 32 Anne Avenue, Charlottetown, Prince Edward Island C1C 0T1

View all 27 photos

About

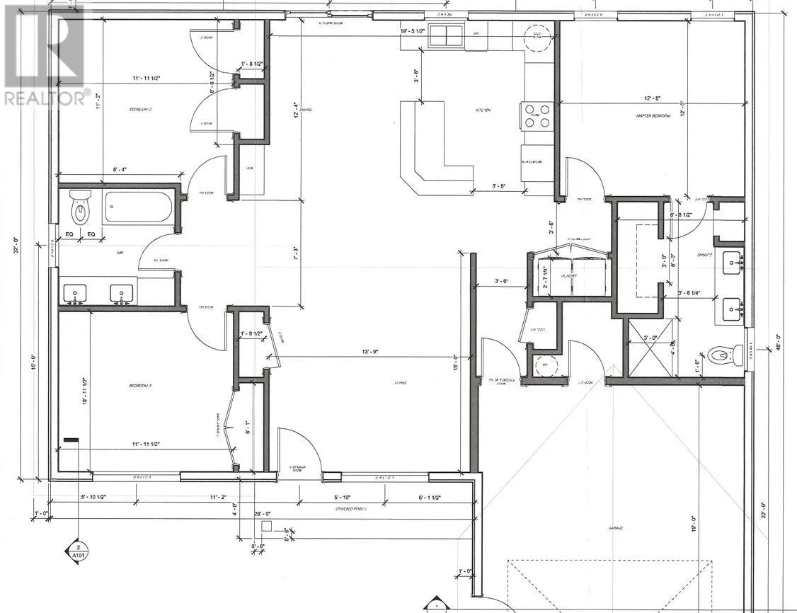
From Charlottetown, take St. Peters road, then turn left onto East Royalty Road, turn left onto Shirley St, then left onto Anne Ave. Property is on the corner on the left. Brand new build in the highly sought after neighborhood of Montgomery Heights. This home is highly accessible, as it sits on a flat lot and the living space is all on one level. As you enter this well crafted home, you are greeted with a sun-filled, open concept living, kitchen & dining area. To keep you cozy during the Winter months, the living room has a built-in, electric fireplace. The kitchen will feature white, shaker style cabinets, stainless steel appliances, and a walk-in pantry. Further inside, the primary suite, boasts a large ensuite bathroom and walk-in closet, plus there are 2 other generously sized bedrooms and an additional full bathroom. The patio door off the dining room opens to a large deck, perfect for enjoying the outdoors, and the garage is a dream with parking for 2 vehicles, to keep you out of the elements. The yard is already sodded, and the front entry area is beautifully landscaped, giving you maximum curb appeal without having to lift a finger. This home is family and senior friendly, and is in close proximity to schools, shopping and public transit. All measurements are approximate and should be verified by purchaser, if deemed necessary. **Some images have been virturaly staged. (id:27476)

Property Highlights

MLS® Number
202527751
Type
Single Family
Community Name
Charlottetown
Ownership Type
Freehold
Land Size
0.31 ac|under 1/2 acre

Building

Building Type
House
Bathrooms Total
2
Bedrooms Above Ground
3
Bedrooms Total
3
Amenities
Golf Course, Park, Playground, Public Transit, Shopping
Exterior Finish
Brick, Vinyl
Fireplace Present
Yes
Basement Type
None
Basement Features
Building Heating Type
Baseboard heaters, Wall Mounted Heat Pump
Heating Fuel
Electric
Building Cooling Type
Air exchanger

Utilities

Water
Municipal water
Utility Sewer
Municipal sewage system

Room Layout

Eat in kitchen
Main level
20.1 x 12.4
Living room
Main level
14.7 x 13.5
Primary Bedroom
Main level
11.10 x 12.8
Ensuite (# pieces 2-6)
Main level
12.2 x 8.8
Bedroom
Main level
11.2 x 10.3
Bedroom
Main level
11.1 x 10.2
Bath (# pieces 1-6)
Main level
7.4 x 7.6

Location

Learn more about this property
Listing provided by:
ELITE REAL ESTATE ADVISORS INC.
MLS® number:
202527751
Agent:
Dj Mcculloch
*Indicates required field
Name is required
Email is required
Please enter a valid phone number (e.g., 416-111-1111).