31 Norman Drive, Charlottetown, Prince Edward Island C1C 0S4

Listed for:
$699,000
5 beds
3 baths
Listed 139 days ago
House for rent: 31 Norman Drive, Charlottetown, Prince Edward Island C1C 0S4

View all 3 photos

About

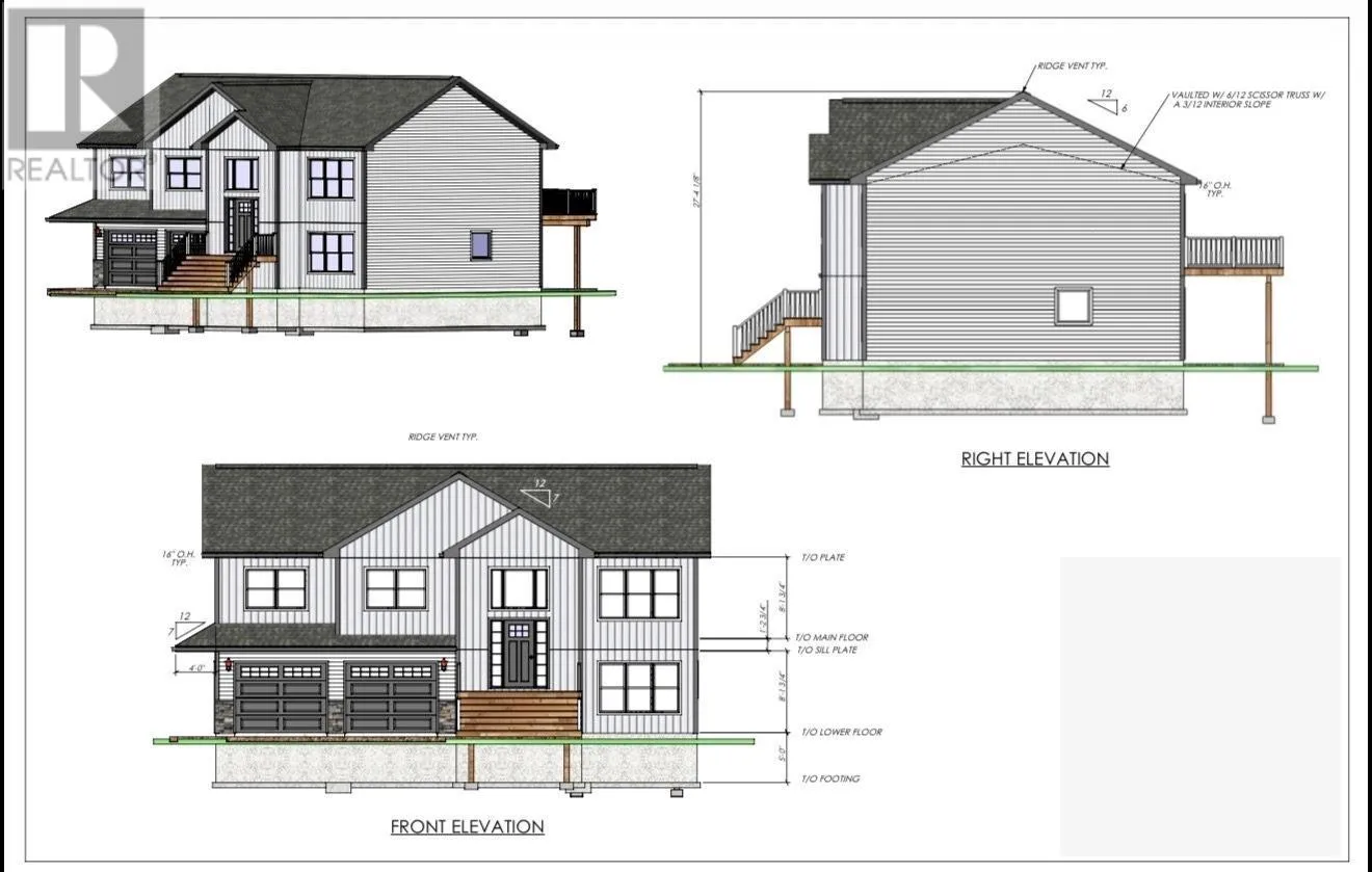
New Construction split-entry home located at 31 Norman Drive, Charlottetown, in the desirable East Royalty neighbourhood. This well-designed home offers 5 spacious bedrooms, 3 full bathrooms, and a heated double garage. The main level features a bright, open-concept layout with a modern kitchen, generous living and dining areas, and access to the back deck - perfect for entertaining or relaxing. The primary bedroom is located on the main floor and includes a walk-in closet and private ensuite bathroom. Two additional large bedrooms and a full main bathroom complete this level. The lower level offers a fully finished in-law suite with a separate entrance, featuring two additional bedrooms, a full bathroom, an open-concept kitchen, and a large family/dining area - ideal for extended family or rental potential. HST is included in the purchase price, with the rebate to be assigned to the Vendor/Builder. Please note: Property tax and assessment values are to be determined. No Property Disclosure Statement (PDS) available. All measurements are approximate and should be verified by the purchaser if deemed necessary. (id:27476)

Property Highlights

MLS® Number
202529752
Type
Single Family
Community Name
Charlottetown
Ownership Type
Freehold
Land Size
0.23 ac|under 1/2 acre

Building

Building Type
House
Bathrooms Total
3
Bedrooms Above Ground
3
Bedrooms Total
5
Amenities
Golf Course, Park, Playground, Public Transit, Shopping
Exterior Finish
Vinyl
Fireplace Present
No
Basement Type
None
Basement Features
Building Heating Type
Wall Mounted Heat Pump
Heating Fuel
Electric
Building Cooling Type
Air exchanger

Utilities

Water
Municipal water
Utility Sewer
Municipal sewage system

Room Layout

Bedroom
Lower level
14.9 x 14
Living room
Lower level
16.6 x 9.8
Kitchen
Lower level
11.6 x 9.10
Bath (# pieces 1-6)
Lower level
8.8 x 8.5
Bedroom
Lower level
13.6 x 11.9
Dining room
Lower level
14 x 7.5
Primary Bedroom
Main level
20.6 x 14.8
Ensuite (# pieces 2-6)
Main level
6.5 x 11.8
Bedroom
Main level
14.4 x 11.8
Bedroom
Main level
14.4 x 11.8
Bath (# pieces 1-6)
Main level
10.1 x 6.10
Living room
Main level
14 x 16
Kitchen
Main level
16 x 9.9
Dining room
Main level
16 x 11.6

Location

Learn more about this property
Listing provided by:
CENTURY 21 COLONIAL REALTY INC
MLS® number:
202529752
Agent:
Amirhossein (gabriel) Rahbari
*Indicates required field
Name is required
Email is required
Please enter a valid phone number (e.g., 416-111-1111).

Community Spotlight: Homes For sale in Your Neighborhood