4 House To Be Moved, Mayfield, Prince Edward Island C0A 1N0

Listed for:
$235,000
3 beds
2 baths
Listed 33 days ago
House for rent: 4 House To Be Moved, Mayfield, Prince Edward Island C0A 1N0

View all 35 photos

Learn more about this property
Listing provided by:
COLDWELL BANKER/PARKER REALTY HUNTER RIVER
MLS® number:
202509884
Agent:
Christine Mcaleer
*Indicates required field
Name is required
Email is required
Please enter a valid phone number (e.g., 416-111-1111).

About

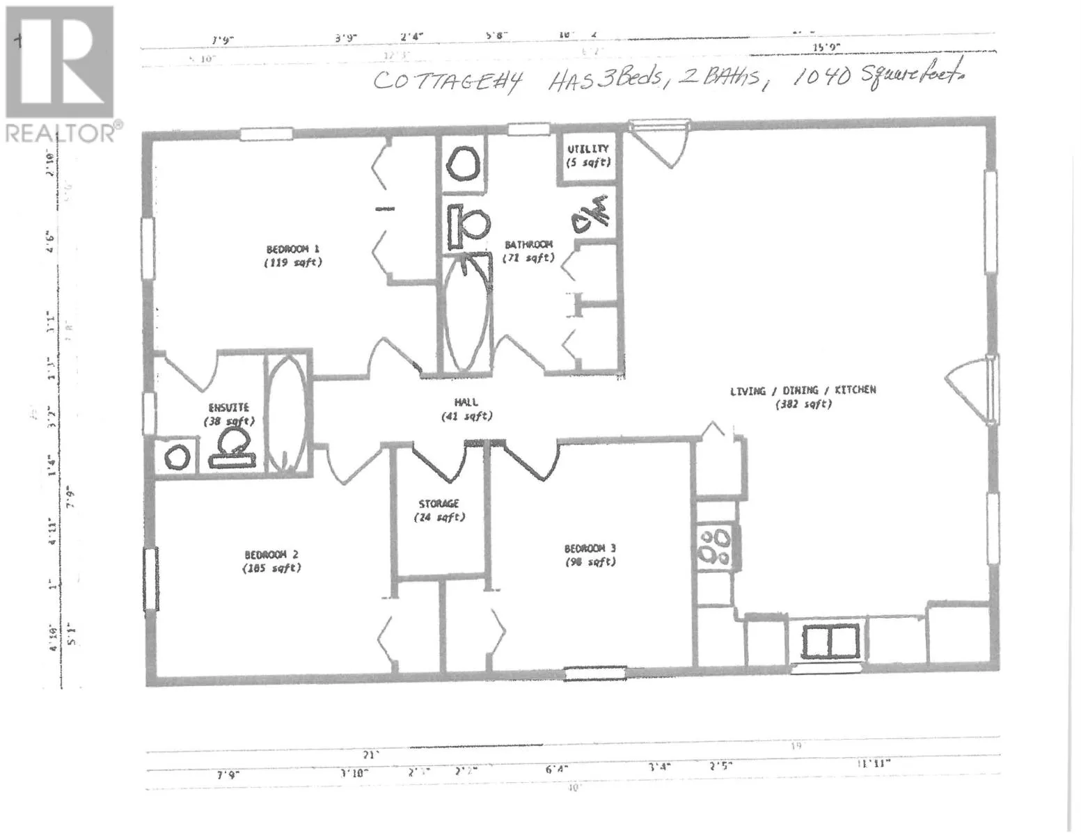
Gorgeous 3 bedroom cottage that is built with quality to be moved to your lot for you to enjoy. Beautiful design with large open concept kitchen, dining and living room with beautiful white cabinets, durable countertops, beautiful water resistant vinyl click flooring throughout, large windows, 2 full bathrooms with surround tub & shower, vanity and toilet. Plus hookups for stackable washer & dryer. This impressive cottage is insulated with R24 in the walls and R 50 in the ceiling. 2x6 construction. Comes equipped with 40 gallon hot water tank, air exchanger, and finished on the inside with walls being painted, trim being painted white, light fixtures and all doors and windows. This cottage can be placed by the buyer on a concrete foundation or posts. Note: doesn?t include appliances, skirting or deck. (id:27476)

Property Highlights

MLS® Number
202509884
Type
Single Family
Community Name
Mayfield
Ownership Type
Unknown

Building

Building Type
House
Bathrooms Total
2
Bedrooms Above Ground
3
Bedrooms Total
3
Exterior Finish
Vinyl
Fireplace Present
No
Basement Type
None
Basement Features
Building Heating Type
Baseboard heaters
Heating Fuel
Electric
Building Cooling Type
Air exchanger

Utilities

Water
None
Utility Sewer
No sewage system

Room Layout

Eat in kitchen
Main level
12x13
Living room
Main level
17.7x12
Primary Bedroom
Main level
13.3x10.7
Bath (# pieces 1-6)
Main level
8.8x5.7
Bedroom
Main level
11.3x11.6
Bedroom
Main level
10x9.6
Bath (# pieces 1-6)
Main level
11x8
Storage
Main level
4x6

Location