27 Connor Drive, Mermaid, Prince Edward Island C1B 4J9

Listed for:
$569,000
3 beds
2 baths
Listed 53 days ago
House for rent: 27 Connor Drive, Mermaid, Prince Edward Island C1B 4J9

View all 43 photos

Learn more about this property
Listing provided by:
EXIT Realty PEI
MLS® number:
202522761
Agent:
Susan Macvittie
*Indicates required field
Name is required
Email is required
Please enter a valid phone number (e.g., 416-111-1111).

About

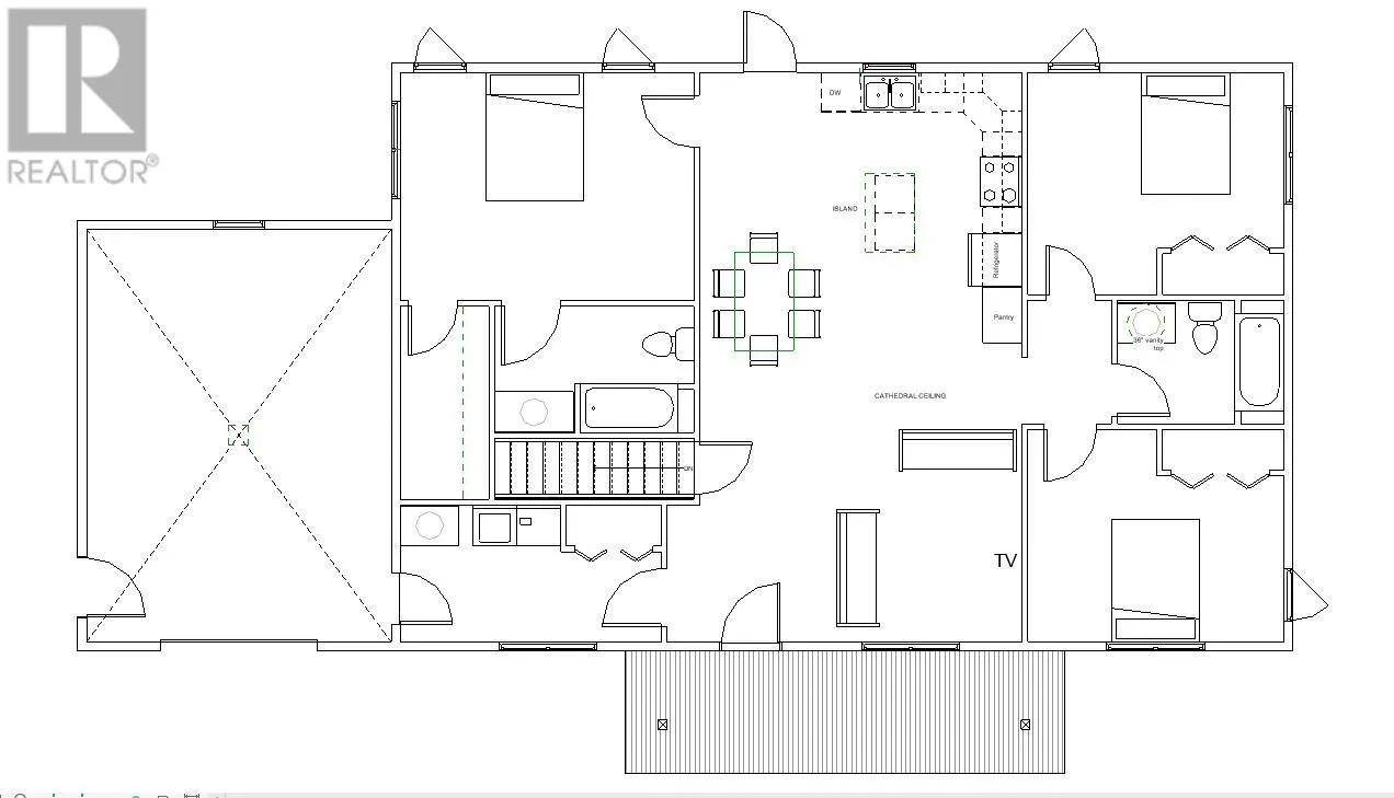
This well crafted brand new 3 bedroom, 2 bath home sits on a large .60 acre lot overlooking the Hillsborough River and is a perfect mix of modern living with a country feel minutes to the city. The heart of the home features a bright open concept living, dining, kitchen area with vaulted ceiling and has a special mezzanine feature that could be a reading nook, a personal library or an area to display art. The kitchen is a stylish space with marine inspired custom cupboards, double basin farmhouse sink, stainless appliances and views to the backyard and door to the deck where sunsets await. Off the kitchen, the primary bedroom gives multiple views towards the river and has a walk in closet and large ensuite bathroom. Off the living room are two more bedrooms with double door closets and a full sized bathroom in between. From the attached garage there is a lovely walkthrough laundry room with a sink, lots of cupboard space and a closet. Downstairs is a partially finished basement with 2 egress windows and is roughed in for a future bathroom with lots of potential for additional bedrooms, family room, etc. This home is unique as it is thoughtfully designed and positioned with passive solar principles in mind to help maximize energy efficiency such as ICF foundation, required roof pitch for future solar installation, south facing windows that flood the space with natural light and positioned for the suns angle to provide warmth in the winter, but not too hot in the summer. The home is also insulated above code requirements in walls and ceilings and has higher end finishings such as wood trim, not mdf, and quartz countertops throughout. It comes with a 8 yr Lux Home Warranty. Located in a cul de sac with newer homes on large lots and surrounded by green space, this beautiful home is minutes to Stratford and 15 minutes to Charlottetown. (id:27476)

Property Highlights

MLS® Number
202522761
Type
Single Family
Community Name
Mermaid
Ownership Type
Freehold
Land Size
0.6 ac|1/2 - 1 acre

Building

Building Type
House
Bathrooms Total
2
Bedrooms Above Ground
3
Bedrooms Total
3
Exterior Finish
Vinyl
Fireplace Present
No
Basement Type
Basement Features
Building Heating Type
Wall Mounted Heat Pump, Heat Recovery Ventilation (HRV)
Heating Fuel
Electric
Building Cooling Type

Utilities

Water
Drilled Well
Utility Sewer
Septic System

Room Layout

Recreational, Games room
Basement
44. x 28.
Living room
Main level
16.5 x 13.
Kitchen
Main level
16.5 x 15.13
Bath (# pieces 1-6)
Main level
6.3 x 8.6
Primary Bedroom
Main level
15.1 x 11.8
Ensuite (# pieces 2-6)
Main level
8.9 x 11.5
Bedroom
Main level
13.2 x 11.4
Bedroom
Main level
13.2 x 10.10
Laundry room
Main level
13. x 7.

Location