29 Pope Avenue, Sherwood, Prince Edward Island C1A 6N4

Listed for:
$699,000
5 beds
3 baths
Listed 150 days ago
House for rent: 29 Pope Avenue, Sherwood, Prince Edward Island C1A 6N4

View all 2 photos

About

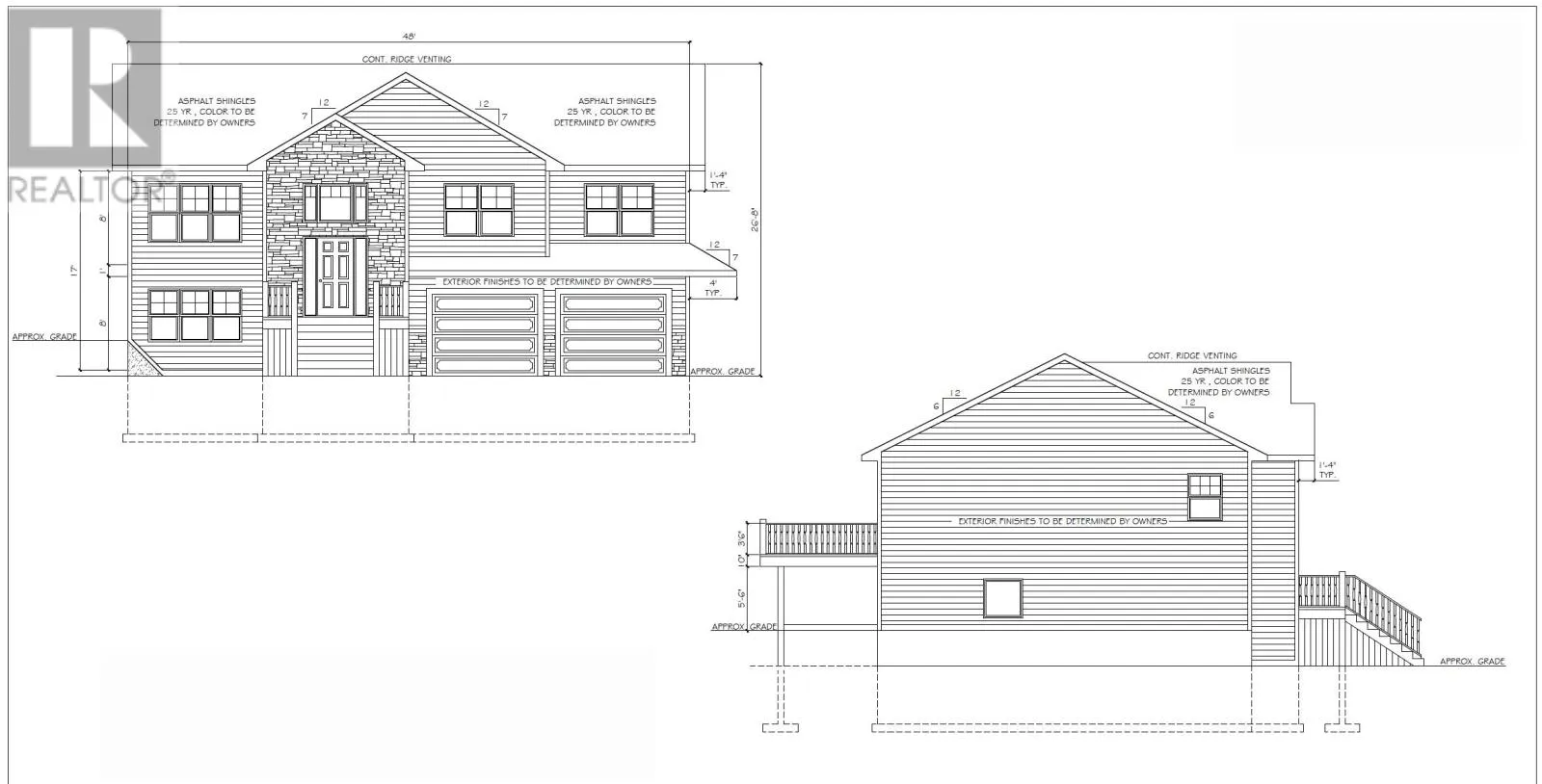
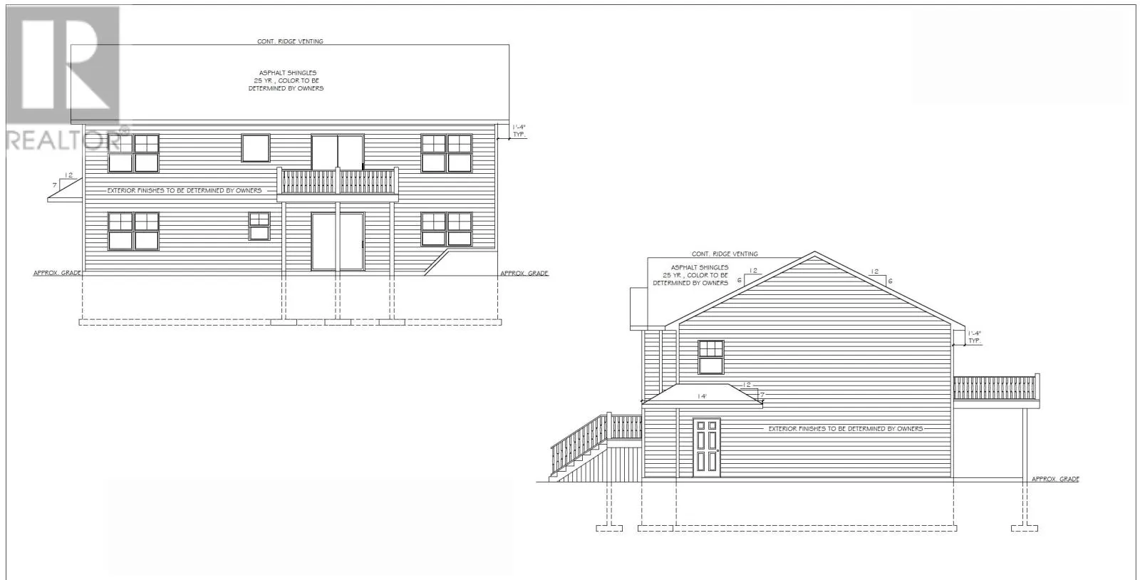
Welcome to 29 Pope Avenue, a stunning split-entry home located in the heart of Sherwood, one of Charlottetown's most sought-after neighborhoods. Perfectly positioned within walking distance to Sherwood Elementary School and just minutes from the Queen Elizabeth Hospital, Charlottetown Mall, parks, and all major amenities, this home offers the perfect balance of comfort and convenience. Designed with a bright and functional layout, the property also features a fully finished lower-level unit with beautiful quartz stone countertops, providing an incredible rental or Airbnb opportunity with full privacy for guests or tenants. Ideal for families, professionals, or investors seeking a prime location with exceptional livability, the project is set to be completed and ready for occupancy by February 1st, 2026. All measurements are approximate and should be verified by the buyer if deemed necessary. Please note: the listing agent is a tenant in common with the seller. HST rebate back to sellers. (id:27476)

Property Highlights

MLS® Number
202521617
Type
Single Family
Community Name
Sherwood
Ownership Type
Freehold
Land Size
0.17 ac|under 1/2 acre

Building

Building Type
House
Bathrooms Total
3
Bedrooms Above Ground
5
Bedrooms Total
5
Amenities
Golf Course, Park, Playground, Public Transit, Shopping
Exterior Finish
Vinyl
Fireplace Present
Yes
Basement Type
Full (Finished)
Basement Features
Walk out
Building Heating Type
Wall Mounted Heat Pump, Radiator
Heating Fuel
Electric
Building Cooling Type

Utilities

Water
Municipal water
Utility Sewer
Municipal sewage system

Room Layout

Living room
Second level
13.2 x 17.4
Dining room
Second level
9 x 12
Kitchen
Second level
12 x 15.8
Primary Bedroom
Second level
12 x 15.8
Bedroom
Second level
10.1 x 12.6
Bedroom
Second level
10.10 x 12.6
Bath (# pieces 1-6)
Second level
9.6 x 4.6
Laundry room
Second level
6 x 5
Living room
Main level
11.6 x 16.6
Dining room
Main level
11.6 x 6.5
Kitchen
Main level
9.9 x 10
Bedroom
Main level
10 x 12
Bedroom
Main level
13 x 11.5
Bath (# pieces 1-6)
Main level
8 x 5
Laundry room
Main level
5 x 5
Foyer
Main level
6 x 8
Other
Main level
Garage - 25.6 x 19

Location

Learn more about this property
Listing provided by:
CENTURY 21 COLONIAL REALTY INC
MLS® number:
202521617
Agent:
Amirhossein (gabriel) Rahbari
*Indicates required field
Name is required
Email is required
Please enter a valid phone number (e.g., 416-111-1111).