Tbd Monument Road, Stanchel, Prince Edward Island C0A 1Y0

Listed for:
$199,900
0 beds
0 baths
Listed 24 days ago
Tbd Monument Road, Stanchel, Prince Edward Island C0A 1Y0

View all 30 photos

About

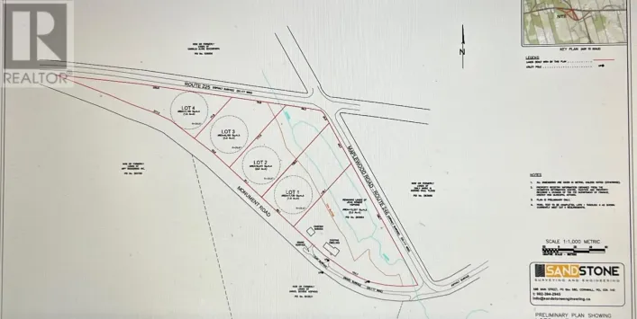
Rte 235 to Maplewood Rd. turn south to Monument Rd. Parcel look for sign Centrally located in the hills of Stanchel this 13.5 acre parcel of pristine organic land has beautiful pastoral views in every direction. This is perfect for someone looking for their own private chunk PEI. Location sets you 30 minutes to Charlottetown or Summerside. 20 minutes to north shore beaches and/or South shore beaches. 15 minutes to Beautiful Victoria By the Sea with its' many artisans shops, art galleries and restaurants along with live theatre. The hills are alive with various species of birds, fish and wildlife. You can build your own personal retreat and retire in solitude. Or you could subdivide and purchase a portion of the property. *all measurements are approximate and come from the government website. (id:27476)

Property Highlights

MLS® Number
202512521
Type
Vacant Land
Community Name
Stanchel
Ownership Type
Freehold
Land Size
13.5 ac|10 - 49 acres

Building

Fireplace Present
No
Basement Type
Basement Features
Building Heating Type
Heating Fuel
Building Cooling Type

Utilities

Water
None
Utility Sewer
No sewage system

Location

Learn more about this property
Listing provided by:
HOMELIFE P.E.I. REALTY INC.
MLS® number:
202512521
Agent:
Greg Lipton
*Indicates required field
Name is required
Email is required
Please enter a valid phone number (e.g., 416-111-1111).