G 13 Myrtle St, Stratford, Prince Edward Island C1B 1P4

Listed for:
$409,000
0 beds
0 baths
Listed 6 days ago
G 13 Myrtle St, Stratford, Prince Edward Island C1B 1P4

View all 29 photos

About

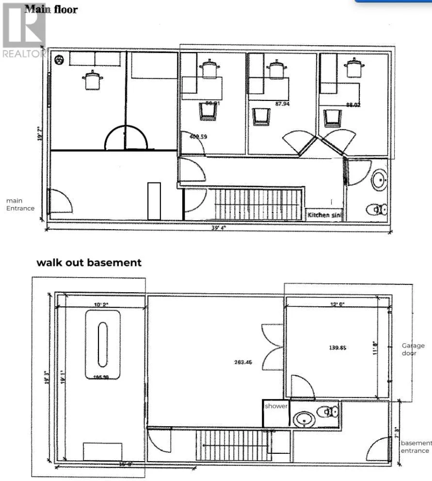
Located in the prestigious Stratford Business Park, this versatile commercial condo offers an exceptional opportunity for investors or owner-occupiers. The main floor features five private offices, a kitchenette, and a washroom, while the fully finished walkout basement includes a boardroom, open workspace, and a full bathroom. Designed for maximum utility, the lower level features a garage door for easy loading and warehouse use. Both levels are equipped with independent entrances, dedicated parking, and high-efficiency heat pumps, allowing the property to be used as a single headquarters or divided into two separate rental units. The property is currently occupied by two tenants on month-to-month contracts; please contact the listing agent for lease details. Part of the 13 Myrtle Condominium Association. All measurements are approximate and must be verified by the purchaser. Disclosure: A shareholder of the owning corporation is a spouse of the listing agent and a member of CREA. (id:27476)

Property Highlights

MLS® Number
202607078
Type
Other
Community Name
Stratford
Ownership Type
Freehold
Land Size
1 - 3 acres

Building

Storeys
2.00
Square Footage
1600 sqft
Amenities
Air Conditioning Public Transit
Fireplace Present
No
Basement Type
Basement Features
Building Heating Type
Heating Fuel
Building Cooling Type

Utilities

Water
Municipal water

Location

Learn more about this property
Listing provided by:
NORTHERN LIGHTS REALTY LTD.
MLS® number:
202607078
Agent:
Yik Kwong (frankie) Cheung
*Indicates required field
Name is required
Email is required
Please enter a valid phone number (e.g., 416-111-1111).