45 Glover Shore Road, Summerside, Prince Edward Island C1N 4G4

Listed for:
$445,000
3 beds
2 baths
Listed 68 days ago
House for rent: 45 Glover Shore Road, Summerside, Prince Edward Island C1N 4G4

View all 16 photos

About

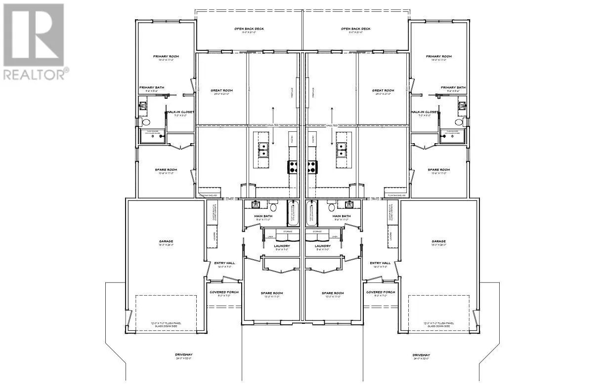
From Water Street turn onto Glover Shore Road, property will be located on the left hand side. Modern style duplex located on a dead-end street just steps from the waterfront and close to all Summerside amenities. This property offers many features not commonly found in other duplex developments and includes modern finishes throughout. Each unit offers 1,450 square feet of finished living space with a 1.5 car garage, 3 bedrooms, and 2 full bathrooms. The primary bedroom includes a walk-in closet and an ensuite with a custom tiled shower. The large entryway features built-in lockers and tile flooring. Tile flooring is also featured in all bathrooms, with water-resistant laminate flooring throughout the remainder of the home. The main living area offers vaulted ceilings with wood beams, large patio doors with access to the back deck, an electric fireplace media wall, and an open concept kitchen, living, and dining layout. The kitchen will include a 7-foot wood-tone island to match the ceiling beams, pewter-colored cabinetry, black hardware, tile backsplash, and all new appliances. Front and rear pressure-treated decks are included. Construction features include an ICF foundation, roof shingles, vinyl siding, 200 amp electrical service, all electric heat plus one heat pump per unit, and a double-wide paved driveway. Exterior colors will be Sand and Linen with black windows and doors, and the garage door will feature windows. Each unit is situated on approximately 0.11 acres. Estimated completion is March 2026. (id:27476)

Property Highlights

MLS® Number
202529239
Type
Single Family
Community Name
Summerside
Ownership Type
Freehold
Land Size
0.1100|under 1/2 acre

Building

Building Type
House
Bathrooms Total
2
Bedrooms Above Ground
3
Bedrooms Total
3
Amenities
Golf Course, Park, Playground, Public Transit, Shopping
Exterior Finish
Vinyl
Fireplace Present
Yes
Basement Type
None
Basement Features
Building Heating Type
Baseboard heaters, Wall Mounted Heat Pump
Heating Fuel
Electric
Building Cooling Type
Air exchanger

Utilities

Water
Municipal water
Utility Sewer
Municipal sewage system

Room Layout

Primary Bedroom
Main level
14 x 11
Ensuite (# pieces 2-6)
Main level
9.6 x 5.6
Other
Main level
7 x 8
Bedroom
Main level
10.6 x 11
Great room
Main level
29 x 21
Kitchen
Main level
Combined
Dining room
Main level
Combined
Bath (# pieces 1-6)
Main level
5.6 x 11
Laundry room
Main level
5.6 x 7
Bedroom
Main level
10 x 11
Other
Main level
Entry 16 x 7

Location

Learn more about this property
Listing provided by:
CENTURY 21 NORTHUMBERLAND REALTY
MLS® number:
202529239
Agent:
Corey Ross
*Indicates required field
Name is required
Email is required
Please enter a valid phone number (e.g., 416-111-1111).