23 Arcona Street, Summerside, Prince Edward Island C1N 2W5

Listed for:
$239,900
3 beds
1 baths
Listed 17 days ago
House for rent: 23 Arcona Street, Summerside, Prince Edward Island C1N 2W5

View all 11 photos

About

Looking for a starter home or hoping to downsize? This well-kept 3-bedroom property is located on a quiet street and close to all major amenities. The main level offers three bedrooms, a spacious kitchen, and a large living room. The home features two heat pumps, a large fenced backyard, which would be great for gardening, with an 8x12 shed, and is conveniently located near Heather Moyse Park. The unfinished basement provides excellent storage space and includes both interior and exterior access. All measurements are approximate and should be deemed accurate by the Buyer if necessary. No PDS. Property being sold "AS IS,WHERE IS". (id:27476)

Property Highlights

MLS® Number
202601714
Type
Single Family
Community Name
Summerside
Ownership Type
Freehold
Land Size
0.153 ac|under 1/2 acre

Building

Building Type
House
Bathrooms Total
1
Bedrooms Above Ground
3
Bedrooms Total
3
Amenities
Park, Playground, Shopping
Exterior Finish
Vinyl
Fireplace Present
No
Basement Type
Full (Partially finished)
Basement Features
Walk out
Building Heating Type
Baseboard heaters, Wall Mounted Heat Pump
Heating Fuel
Electric
Building Cooling Type

Utilities

Water
Municipal water
Utility Sewer
Municipal sewage system

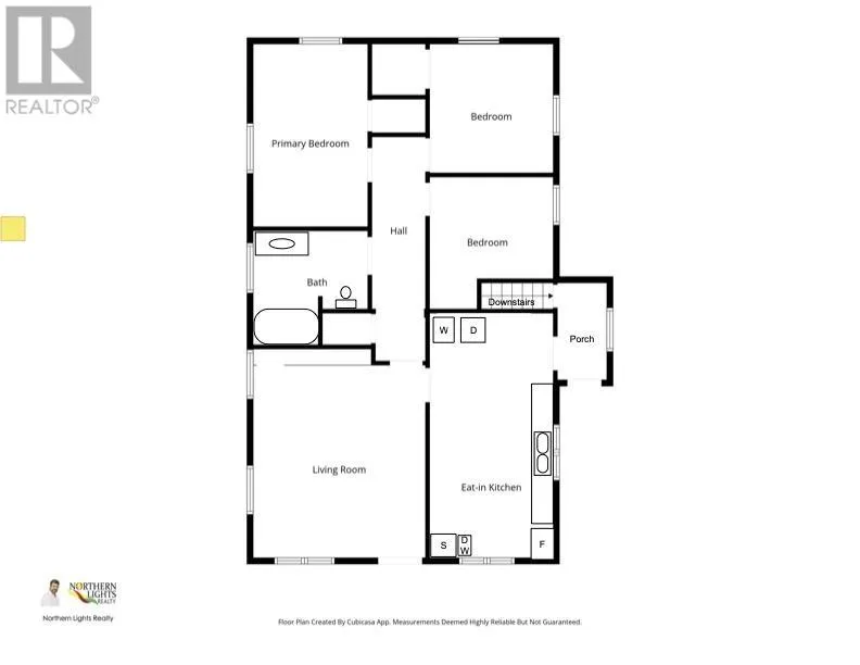
Room Layout

Eat in kitchen
Main level
14.2x15.8
Living room
Main level
19.1x19.1
Primary Bedroom
Main level
8.9x14.4
Bedroom
Main level
10.5x10
Bedroom
Main level
10.5x7.1
Bath (# pieces 1-6)
Main level
8.1x5.4
Porch
Main level
4.7x8.6

Location

Learn more about this property
Listing provided by:
NORTHERN LIGHTS REALTY LTD.
MLS® number:
202601714
Agent:
Ron Macmillan
*Indicates required field
Name is required
Email is required
Please enter a valid phone number (e.g., 416-111-1111).

Community Spotlight: Homes For sale in Your Neighborhood