Ricard, Hudson Bay Rm No. 394, Saskatchewan S0E 0Y0

Listed for:
$110,000
2 beds
1 baths
Listed 32 days ago
Mobile Home for rent: Ricard, Hudson Bay Rm No. 394, Saskatchewan S0E 0Y0

View all 31 photos

Learn more about this property
Listing provided by:
Century 21 Proven Realty
MLS® number:
SK009182
Agent:
Ruby Moshenko
*Indicates required field
Name is required
Email is required
Please enter a valid phone number (e.g., 416-111-1111).

About

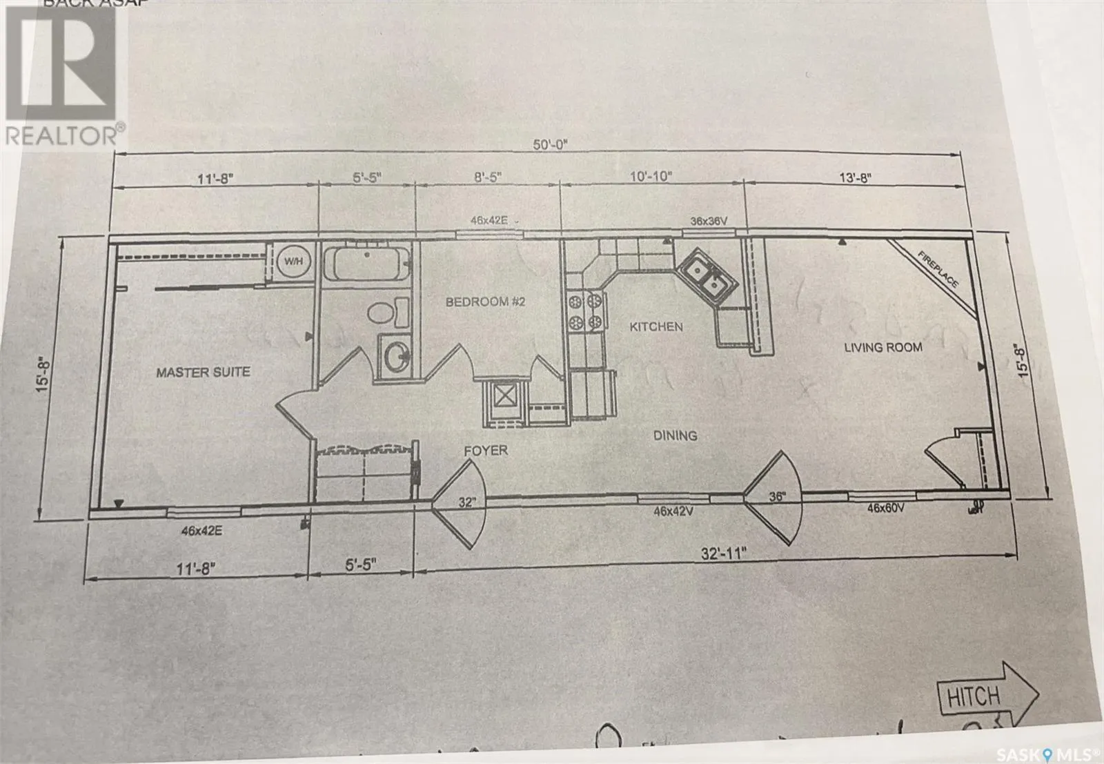
contact listing agent TO BE MOVED 2015 modular. 2 bedroom 1 bath, wood fireplace. Open concept front portion. Comes with central airconditioning, propane tank, blocking and skirting. In excellent condition!!! Call today to setup appointment to view or for further information. Floor plan in the pictures (id:27476)

Property Highlights

MLS® Number
SK009182
Type
Single Family
Ownership Type
Freehold
Land Size
0.00

Building

Building Type
Mobile Home
Square Footage
800 sqft
Bathrooms Total
1
Bedrooms Total
2
Fireplace Present
Yes
Basement Type
Basement Features
Building Heating Type
Forced air
Heating Fuel
Propane
Building Cooling Type
Central air conditioning

Location