419 680 7th Avenue E, Melville, Saskatchewan S0A 2P0

Listed for:
$115,000
1 beds
1 baths
Listed 1 day ago
Apartment for rent: 419 680 7th Avenue E, Melville, Saskatchewan S0A 2P0

View all 44 photos

Learn more about this property
Listing provided by:
Royal LePage Next Level
MLS® number:
SK021530
Agent:
Tammy Wandy
*Indicates required field
Name is required
Email is required
Please enter a valid phone number (e.g., 416-111-1111).

About

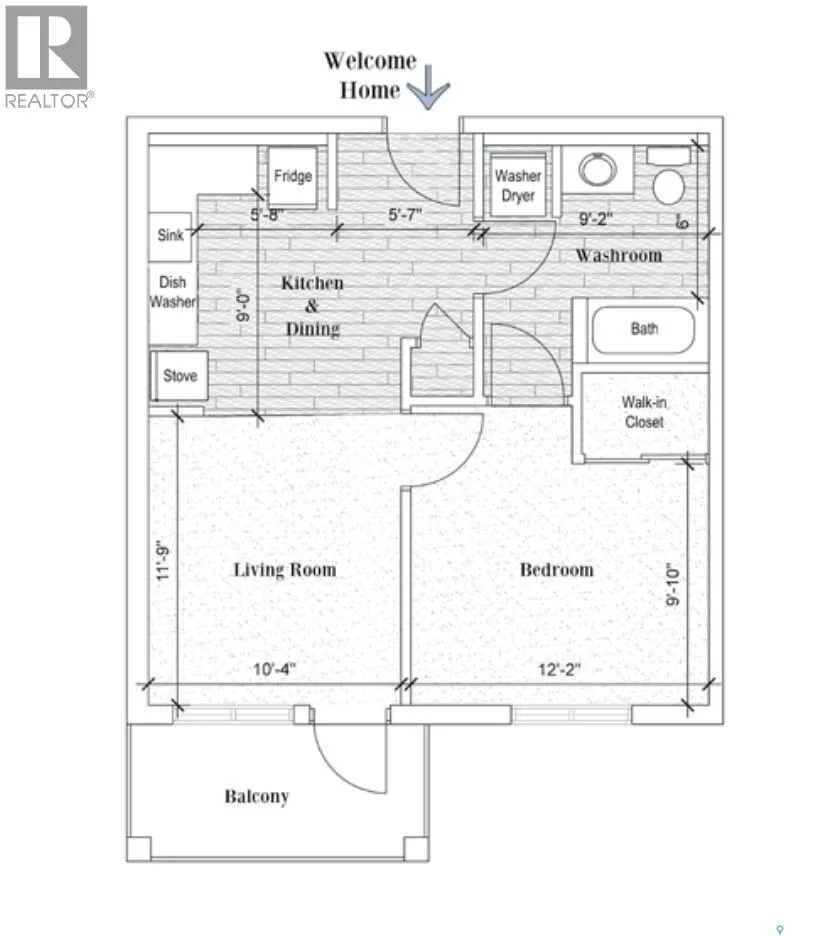
Welcome to effortless living at the charming Cumberland Villas in Melville. This inviting 532 sq. ft. one bedroom, on bathroom suite on the 4th floor offers comfort, convenience, and thoughtful design. The eat-in kitchen flows seamlessly into a bright, spacious living area and features 4 appliances along with generous counter and cabinet space. The bedroom is well-sized with a large closet, and the 4-piece bathroom includes stackable laundry accessible from both the foyer and bedroom for added ease. Step out onto your private north-facing balcony, perfect for relaxing or enjoying the fresh air. This suite includes a dedicated parking stall and access to a wide range of amenities, such as a dining and bistro area, workshop, library, elevator, lounge, and recreation center — all designed to enhance your lifestyle. At Cumberland Villas, you’ll discover a welcoming community and the perfect place to call home. (id:27476)

Property Highlights

MLS® Number
SK021530
Type
Single Family
Maintenance Fee
244.20
Ownership Type
Condominium/Strata
Land Size
3.18 ac

Building

Building Type
Apartment
Square Footage
532 sqft
Bathrooms Total
1
Bedrooms Total
1
Amenities
Dining Facility, Guest Suite
Fireplace Present
No
Basement Type
Basement Features
Building Heating Type
Forced air
Heating Fuel
Electric
Building Cooling Type
Central air conditioning

Location