79 Bluebell Crescent, Moose Jaw, Saskatchewan S6J 1A2

Listed for:
$424,900
4 beds
3 baths
Listed 89 days ago
House for rent: 79 Bluebell Crescent, Moose Jaw, Saskatchewan S6J 1A2

View all 50 photos

About

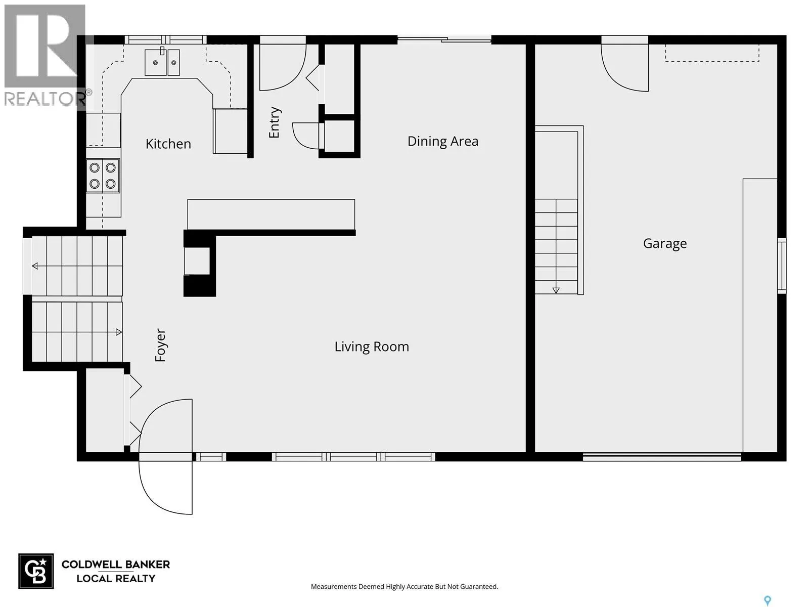
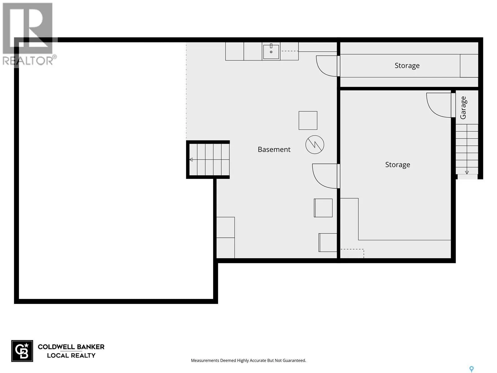
Large family home on a corner lot in the desirable Sunningdale neighborhood with 2 garages! This home holds 4 bedrooms, 3 recently renovated bathrooms, and 1327 sq over over the top two levels (with 2 more levels below grade!) This pet-free home has been well cared for over the years! Entering the front door, you step into your spacious living room with huge front windows letting in tons of natural light. You have a spacious dining room, coffee bar, and kitchen with lots of storage! The upstairs level features 3 good-sized bedrooms. The primary hosts an updated 2-pc ensuite and access out to your private balcony! This level also hosts a full 4-pc updated bathroom, and laundry! Head down to the first basement to find a spacious family room complete with wood burning fireplace, built-in cabinetry, and large windows. This level hosts another bedroom, and updated 3-pc bathroom with tile shower. The lower basement level offers you tons of storage space, a cold room and a large workshop area. This area has potential to be finished into whatever you'd like, or could remain as a great place for projects! From here you have access to your attached 14' x 24' garage as well. Head on outside to your huge, fully-fenced backyard! You have a beautiful covered deck, garden area, and plenty of space for activities! Let's not forget about the second 24' x 20' detached garage! This property offers tons of off street parking, and is perfect for those needing extra storage or workshop space! Recent updates include: New siding and shingles installed in 2018, new exterior doors, newer appliances and the home was recently professionally painted throughout! Located on a great crescent, in an excellent neighborhood close to schools, parks and amenities, this is truly a place to call home! Book your showing today! (id:27476)

Property Highlights

MLS® Number
SK023729
Type
Single Family
Ownership Type
Freehold
Land Size
9857.16 sqft

Building

Building Type
House
Square Footage
1327 sqft
Bathrooms Total
3
Bedrooms Total
4
Fireplace Present
Yes
Basement Type
Full (Partially finished)
Basement Features
Building Heating Type
Forced air
Heating Fuel
Natural gas
Building Cooling Type
Central air conditioning

Location

Learn more about this property
Listing provided by:
Coldwell Banker Local Realty
MLS® number:
SK023729
Agent:
Jordan Fehr
*Indicates required field
Name is required
Email is required
Please enter a valid phone number (e.g., 416-111-1111).