74 Aaron Drive, North Qu'Appelle Rm No. 187, Saskatchewan S0G 1S0

Listed for:
$1,200,000
5 beds
3 baths
Listed 102 days ago
House for rent: 74 Aaron Drive, North Qu'Appelle Rm No. 187, Saskatchewan S0G 1S0

View all 5 photos

Learn more about this property
Listing provided by:
Authentic Realty Inc.
MLS® number:
SK005597
Agent:
Nichole Redlick
*Indicates required field
Name is required
Email is required
Please enter a valid phone number (e.g., 416-111-1111).

About

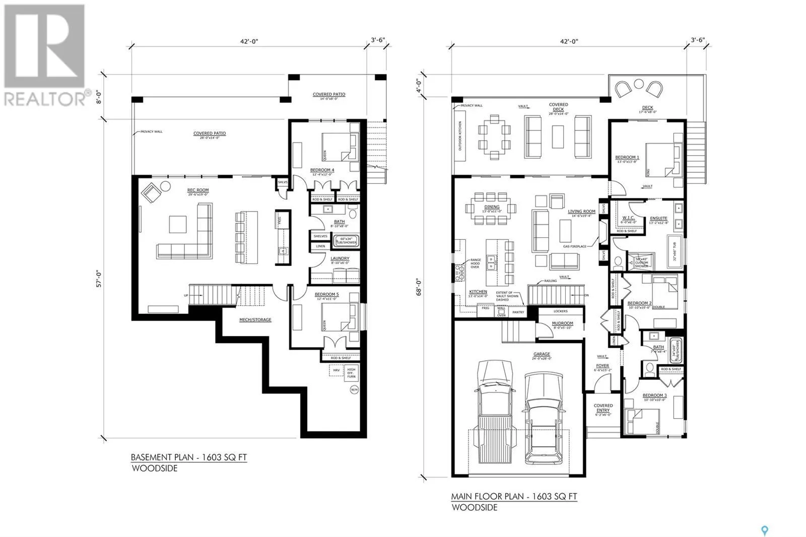
If you’ve been dreaming of escaping the hustle of city life and embracing the peace of lakeside living, 74 Aaron Drive on Echo Lake is waterfront lot. Just a short commute from the city, this stunning lakefront home offers the perfect balance of convenience and tranquility. Home will be built by Authentic Developments, this walkout bungalow offers 1,603 square feet on both the main and lower levels. The main floor features three spacious bedrooms and two bathrooms, while the fully developed basement adds two additional bedrooms and another full bathroom — perfect for hosting family or guests. The home comes complete with a drilled well, a 2,500-gallon septic tank, and a commercial-grade reverse osmosis system. Inside, you’ll find upscale touches like a custom tile shower, a freestanding tub, and a cozy fireplace, all complemented by a completed deck that extends your living space outdoors. Best of all, construction hasn’t started yet, which means there’s still time to personalize the layout and finishing details to perfectly reflect your style and budget. Boathouse and landscaping could be added for additional cost. Whether you're seeking a weekend retreat or a full-time lakeside residence, this is your opportunity to make lake life a reality. Let the planning begin. (id:27476)

Property Highlights

MLS® Number
SK005597
Type
Single Family
Ownership Type
Freehold
Land Size
8712 sqft

Building

Building Type
House
Storeys
1.00
Square Footage
1603 sqft
Bathrooms Total
3
Bedrooms Total
5
Fireplace Present
Yes
Basement Type
Full (Finished)
Basement Features
Building Heating Type
Forced air
Heating Fuel
Natural gas
Building Cooling Type
Central air conditioning, Air exchanger

Location