B 4300 5th Avenue E, Prince Albert, Saskatchewan S6W 0A5

Listed for:
$16
0 beds
0 baths
Listed 74 days ago
Warehouse for rent: B 4300 5th Avenue E, Prince Albert, Saskatchewan S6W 0A5

View all 1 photos

About

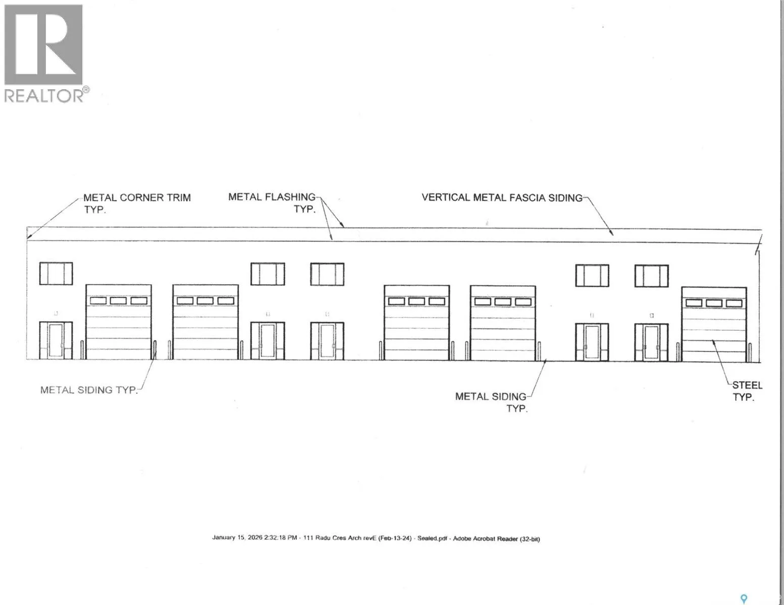
New for 2026: Heated Shop space measures 30' x 60' with large overhead doors includes individual outside fenced storage. (id:27476)

Property Highlights

MLS® Number
SK029790
Type
Industrial
Ownership Type
Leasehold

Building

Building Type
Warehouse
Square Footage
9000 sqft
Amenities
Storefront
Fireplace Present
No
Basement Type
Basement Features
Building Heating Type
Other
Heating Fuel
Building Cooling Type

Location

Learn more about this property
Listing provided by:
Advantage Real Estate
MLS® number:
SK029790
Agent:
Duane Braaten P.app Aaci
*Indicates required field
Name is required
Email is required
Please enter a valid phone number (e.g., 416-111-1111).