3 Miller Street, Redvers, Saskatchewan S0C 2H0

Listed for:
$19,900
0 beds
0 baths
Listed 39 days ago
Mobile Home for rent: 3 Miller Street, Redvers, Saskatchewan S0C 2H0

View all 18 photos

About

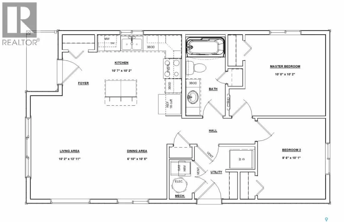
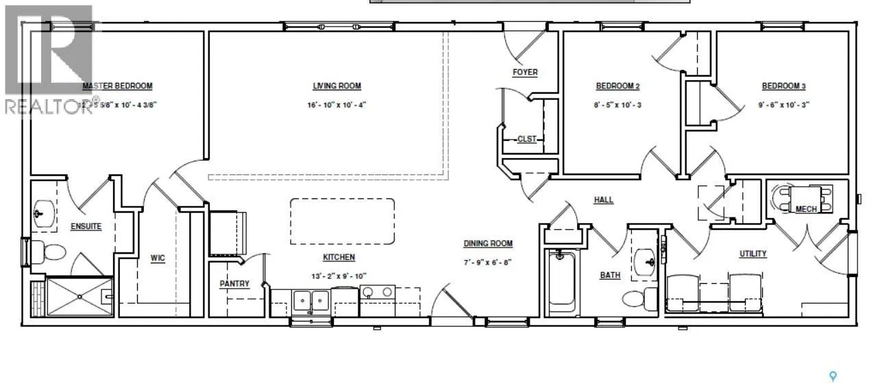
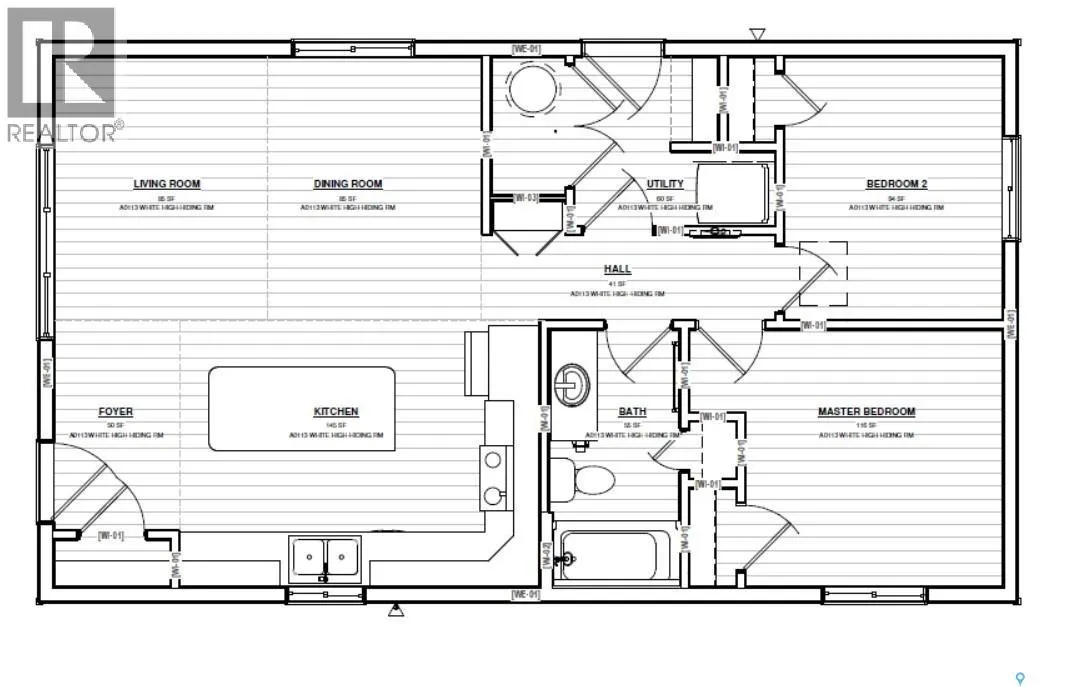
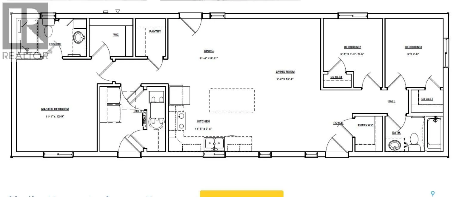
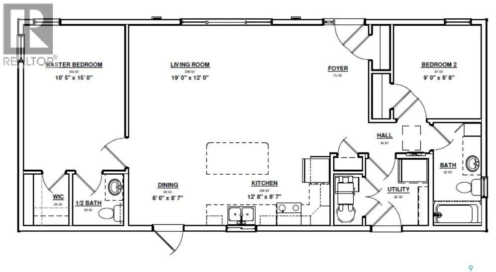
FULLY SERVICED LOT AT 3 MILLER ST. - Redvers, Sk Priced at a significant discount of developed cost at $19,900 - Realtor owned. Here's an opportunity to develop a fully serviced oversized 73' x 129' level lot, with concrete piles ready to accommodate a modular home of your choice. Lot is landscaped with timbers & gravel to denote the parking area. Natural Gas, Power, Town water & sewer ( 2 connections) are all on Site. Pictures shown are potential plans manufactured by Grandeur Housing Ltd., a premiere & reputable builder celebrating 50 years of providing quality, innovative & affordable modular homes. See grandeurhousing.com for numerous plans available. Contact Realtors for more information. (id:27476)

Property Highlights

MLS® Number
SK027371
Type
Single Family
Ownership Type
Freehold
Land Size
9417 sqft

Building

Building Type
Mobile Home
Fireplace Present
No
Basement Type
Basement Features
Building Heating Type
Heating Fuel
Natural gas
Building Cooling Type

Location

Learn more about this property
Listing provided by:
Performance Realty
MLS® number:
SK027371
Agent:
Raymond Boutin
*Indicates required field
Name is required
Email is required
Please enter a valid phone number (e.g., 416-111-1111).