3071 Dumont Way, Regina, Saskatchewan S4V 3Z5

Listed for:
$689,900
6 beds
4 baths
Listed 164 days ago
House for rent: 3071 Dumont Way, Regina, Saskatchewan S4V 3Z5

View all 5 photos

About

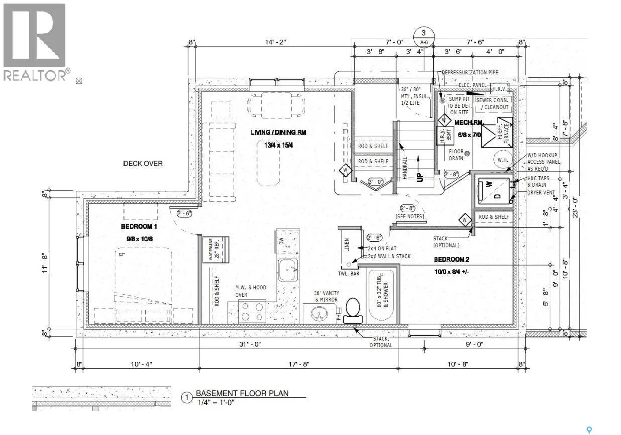
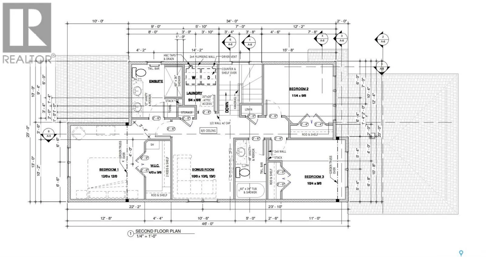
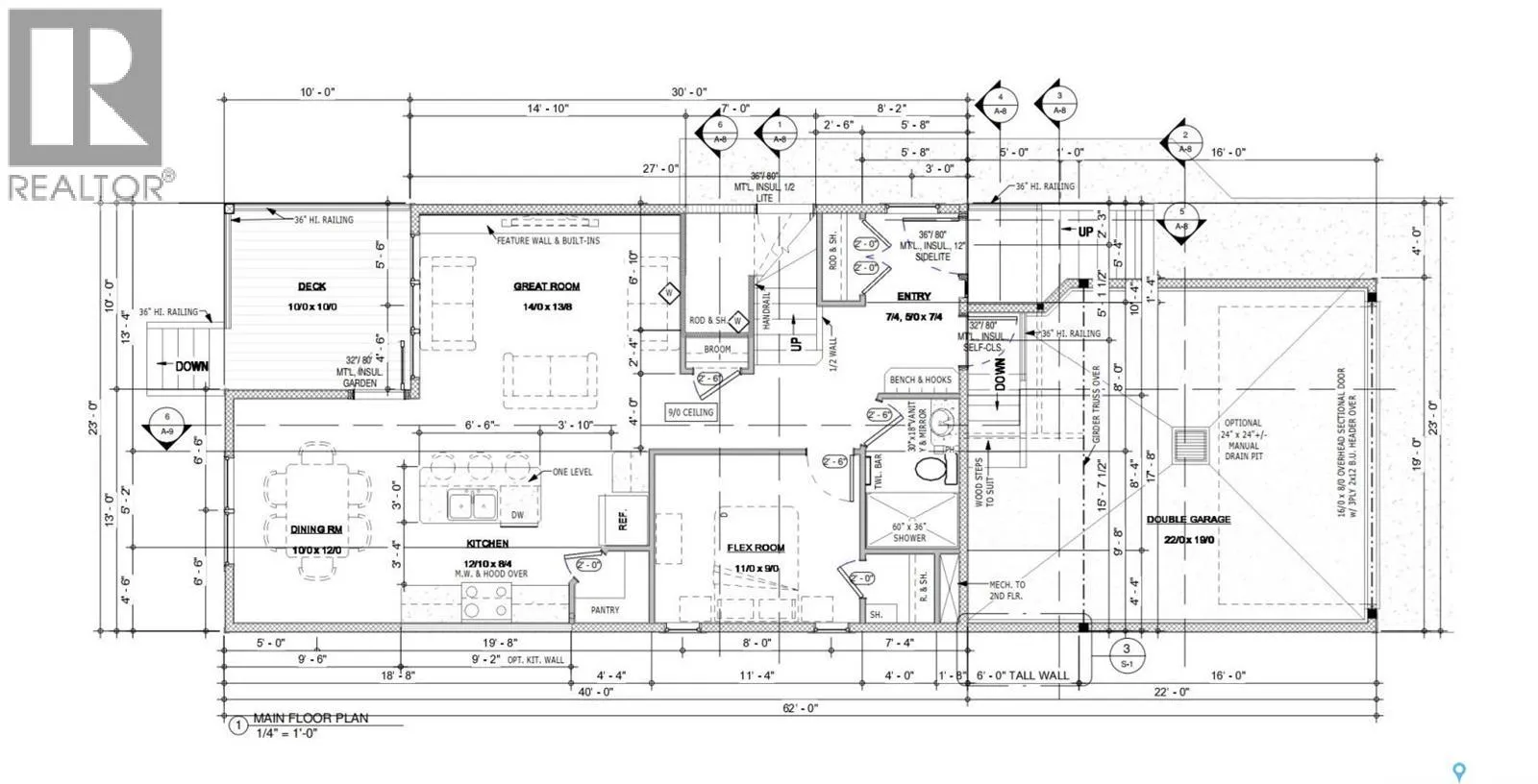
Welcome to 3071 Dumont Way, a stunning, brand-new 1,753 sq ft two-storey home in the desirable neighborhood of The Towns. The bright, open-concept main floor is enhanced by soaring 9ft ceilings, creating an airy and spacious feel throughout the kitchen with its large island, the dedicated dining room, inviting living room, and the highly sought-after main-floor bedroom and 3-piece full bathroom. Upstairs, the private second level is home to a spacious primary bedroom with a 4-piece ensuite and walk-in closet, two additional bedrooms, another full bathroom, a versatile bonus room, and a dedicated laundry room. A major highlight is the legal basement suite, providing an excellent mortgage helper with its own separate entrance, a full second kitchen, a comfortable living room, two additional bedrooms, and a 3-piece bathroom. This exceptional property offers a total of 6 bedrooms and 4 bathrooms, plus the comfort of central air and a natural gas BBQ hookup. With a double attached, heated, and fully insulated garage and an HRV, this home delivers the perfect blend of style, comfort, and investment potential. Kitchen appliances and laundry for both units are included in the purchase price. A showing of a similar kind of home can be arranged. Don’t miss this one — book your viewing today! (id:27476)

Property Highlights

MLS® Number
SK022255
Type
Single Family
Ownership Type
Freehold
Land Size
3560 sqft

Building

Building Type
House
Storeys
2.00
Square Footage
1753 sqft
Bathrooms Total
4
Bedrooms Total
6
Fireplace Present
No
Basement Type
Full (Finished)
Basement Features
Building Heating Type
Baseboard heaters, Forced air
Heating Fuel
Electric, Natural gas
Building Cooling Type
Central air conditioning

Location

Learn more about this property
Listing provided by:
Royal LePage Next Level
MLS® number:
SK022255
Agent:
Vipul (vipulkumar) Rabari
*Indicates required field
Name is required
Email is required
Please enter a valid phone number (e.g., 416-111-1111).