2010 7th Avenue, Regina, Saskatchewan S4R 1C2

Listed for:
$1,000
0 beds
0 baths
Listed 1 day ago
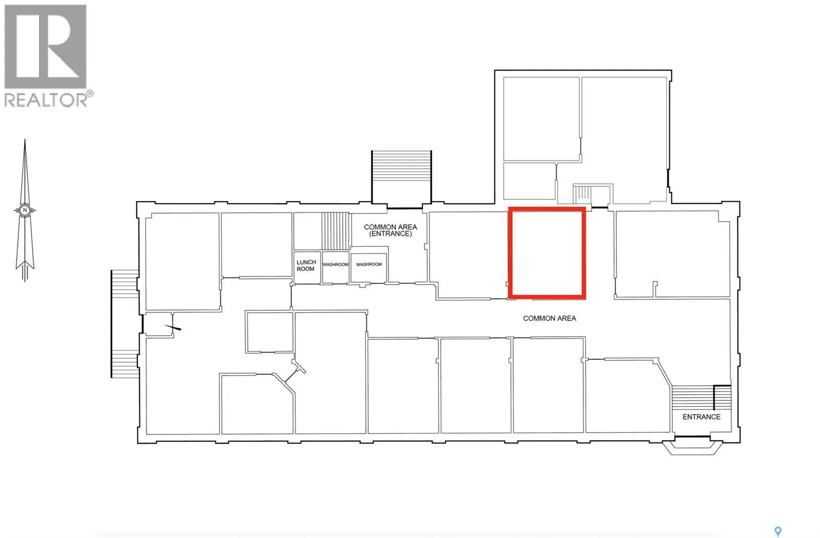
Offices for rent: 2010 7th Avenue, Regina, Saskatchewan S4R 1C2

View all 6 photos

Learn more about this property
Listing provided by:
RE/MAX Crown Real Estate
MLS® number:
SK023740
Agent:
John Chung
*Indicates required field
Name is required
Email is required
Please enter a valid phone number (e.g., 416-111-1111).

About

Available immediately! Rent includes all utilities and internet(Fiber Optics). This modern office was recently renovated. Large office which can easily accommodate 2-3 people. Lots of parking available and located in the heart of the Warehouse District close to many amenities. Landlord looks after all common areas such as the bathroom and coffee area. (id:27476)

Property Highlights

MLS® Number
SK023740
Type
Office
Ownership Type
Leasehold

Building

Building Type
Offices
Square Footage
182 sqft
Fireplace Present
No
Basement Type
Basement Features
Building Heating Type
Furnace
Heating Fuel
Building Cooling Type

Location