1817 Osler Street, Regina, Saskatchewan S4P 1W1

Listed for:
$1,500
0 beds
0 baths
Listed 81 days ago
Offices for rent: 1817 Osler Street, Regina, Saskatchewan S4P 1W1

View all 27 photos

About

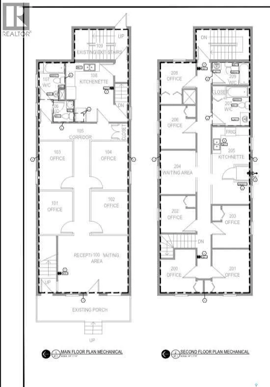
PLAN: OLD33 BLOCK: 302 LOT:5 Newly renovated multi-unit building at 1817 Osler St, perfect for offices, studios, or small businesses. There are two separate floors/units available for rent. Main floor unit features 4 office rooms(each room available at $500 per month), waiting/reception area, 2 washrooms and kitchen/lunch area. The second floor features 6 office rooms(each room available at $350 per month), with 2 washrooms, waiting area, laundry area and a shared kitchen/lunch area. Full-floor rentals are also available at $2,000/month for the main floor and $1500 for the second floor. Each floor includes 2 parking spots, with additional street parking in front. Conveniently located near to downtown, local amenities, restaurants, and public transit. (id:27476)

Property Highlights

MLS® Number
SK024383
Type
Office
Ownership Type
Leasehold
Land Size
3128 sqft

Building

Building Type
Offices
Square Footage
2322 sqft
Fireplace Present
No
Basement Type
Basement Features
Building Heating Type
Furnace
Heating Fuel
Building Cooling Type

Location

Learn more about this property
Listing provided by:
eXp Realty
MLS® number:
SK024383
Agent:
Swapnil Shah
*Indicates required field
Name is required
Email is required
Please enter a valid phone number (e.g., 416-111-1111).