1138 Poley Street, Regina, Saskatchewan S4R 8H3

Listed for:
$619,900
6 beds
4 baths
Listed 94 days ago
House for rent: 1138 Poley Street, Regina, Saskatchewan S4R 8H3

View all 4 photos

About

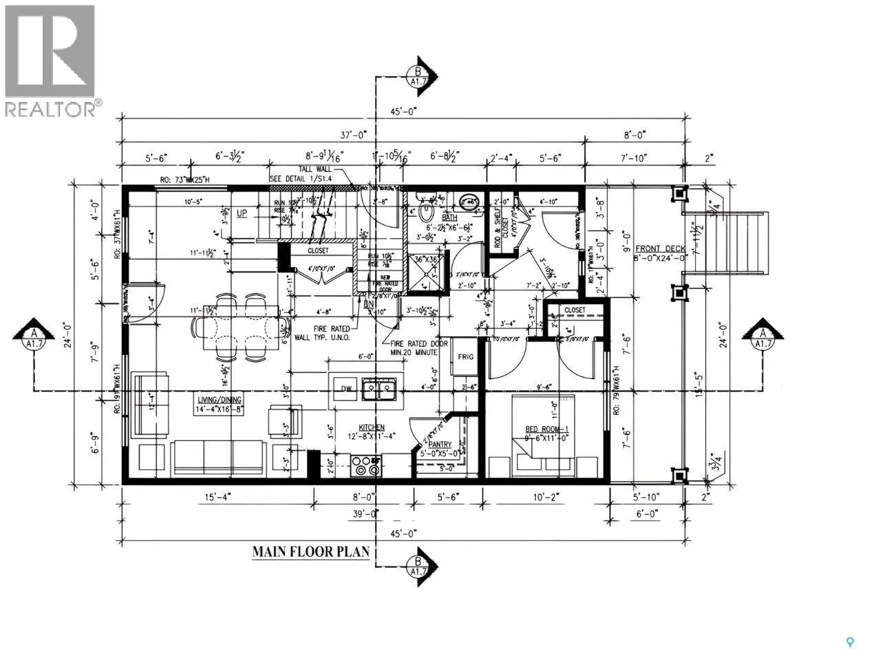
Discover this custom built brand-new 2025 two-storey home in Hawkstone, offering 6 bedrooms, 4 bathrooms, and 2 full kitchens across 1,785 sq ft of thoughtfully designed living space. The main floor features a bright living room, modern kitchen, and one bedroom with a 3-pc bath. Upstairs, you’ll find a spacious bonus room, two secondary bedrooms, a full bath, and a private primary suite with its own 4-pc ensuite. The fully finished basement suite can provide additional income and includes kitchen, living room, laundry, two bedrooms, and a 3-pc bathroom. Buyers can take advantage of secondary suite incentive program if the possession is done before end of March 2026. Sitting on a large 3,675 sq ft lot with parking for two, this home is perfect for large families or those seeking multigenerational living. Located in Regina’s growing Hawkstone community, you’re close to parks, shopping, and everyday conveniences. (id:27476)

Property Highlights

MLS® Number
SK024665
Type
Single Family
Ownership Type
Freehold
Land Size
3675 sqft

Building

Building Type
House
Storeys
2.00
Square Footage
1785 sqft
Bathrooms Total
4
Bedrooms Total
6
Fireplace Present
No
Basement Type
Full (Finished)
Basement Features
Building Heating Type
Heating Fuel
Natural gas
Building Cooling Type

Location

Learn more about this property
Listing provided by:
eXp Realty
MLS® number:
SK024665
Agent:
Mayur Sharma
*Indicates required field
Name is required
Email is required
Please enter a valid phone number (e.g., 416-111-1111).