1801 Mcara Street, Regina, Saskatchewan S4N 6C6

Listed for:
$1,199,999
0 beds
0 baths
Listed 7 days ago
Offices for rent: 1801 Mcara Street, Regina, Saskatchewan S4N 6C6

View all 25 photos

About

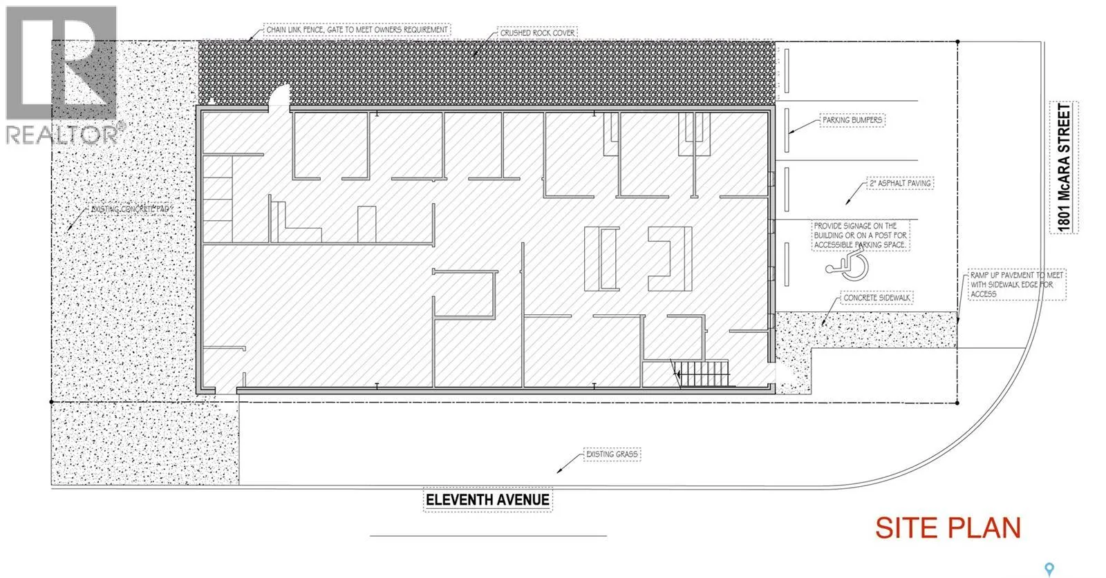
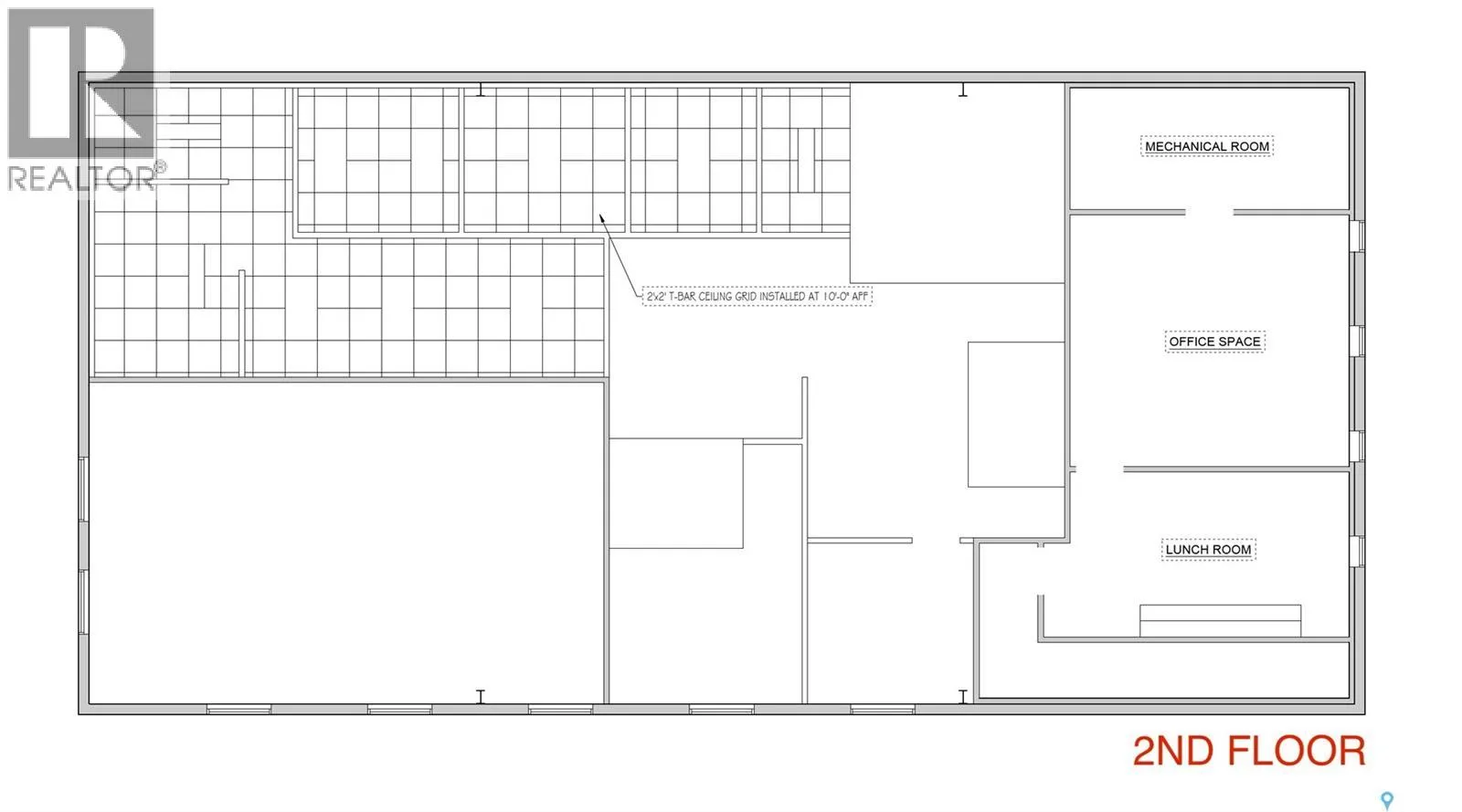
Rare and exceptional opportunity to acquire a turnkey commercial property in the highly desirable Industrial Tuxedo area of Regina. Situated on a prominent corner lot of McAra street between Dewdney and Victoria Avenue, this approximately 4,000 sq. ft. building offers a unique blend of industrial durability and modern finish. Originally a light industrial warehouse, the property underwent an extensive renovation in 2018, transforming it into a high-quality facility currently configured as a veterinary clinic. The space is immaculately maintained and features a versatile layout that transitions seamlessly to professional offices, a medical clinic, or a specialized retail showroom. The ground floor provides ample operational space in forms of office and exam rooms, while the bonus second floor adds significant value, perfect for a private staff lounge, executive offices, a boardroom, or a dedicated breakout area. With its modernized infrastructure and flexible zoning potential, this property is a rare find ready for immediate occupancy or easy conversion. Due to nature of business, the owner requests all showings to be in evenings after 7:15 PM or weekends. (id:27476)

Property Highlights

MLS® Number
SK026149
Type
Office
Ownership Type
Freehold
Land Size
0.14 ac

Building

Building Type
Offices
Square Footage
4002 sqft
Fireplace Present
No
Basement Type
Basement Features
Building Heating Type
Furnace
Heating Fuel
Building Cooling Type

Location

Learn more about this property
Listing provided by:
RE/MAX Crown Real Estate
MLS® number:
SK026149
Agent:
John Chung
*Indicates required field
Name is required
Email is required
Please enter a valid phone number (e.g., 416-111-1111).