5210 Green Crescent, Regina, Saskatchewan S4V 3S9

Listed for:
$799,900
5 beds
4 baths
Listed 21 days ago
House for rent: 5210 Green Crescent, Regina, Saskatchewan S4V 3S9

View all 6 photos

About

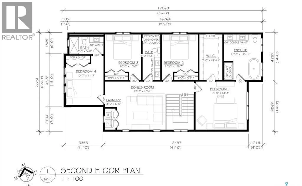
Under Construction – Completion Estimated October 2026. Exceptional new build in the heart of Greens on Gardiner, backing directly onto green space for added privacy and open views. Welcome to 5210 Green Crescent, a thoughtfully designed two-storey home offering 2,393 sq. ft. of well-planned living space in one of East Regina’s most sought-after neighbourhoods. The main floor is designed for both functionality and flexibility, featuring an open-concept great room, dining area, and kitchen, along with a main-floor bedroom and 3-piece bathroom—ideal for guests, extended family, or a home office. The layout flows seamlessly for everyday living and entertaining, with large windows positioned to take advantage of the backyard green space. Upstairs, you’ll find four spacious bedrooms, including a generous primary suite complete with a 5-piece ensuite and walk-in closet. Two additional bedrooms are well-sized, complemented by another full bathroom, while a bonus room provides valuable extra living space. Second-floor laundry adds everyday convenience for busy households. Additional highlights include a double attached garage, a separate side entrance allowing for future suite potential, and a location that offers easy access to walking paths, parks, schools, and all east-end amenities. Construction is well underway, with framing, windows, and the overall layout now clearly defined, giving buyers a strong sense of the finished home. A rare opportunity to secure a spacious, modern home backing green space in Greens on Gardiner—ideal for families seeking location, layout, and long-term value. (id:27476)

Property Highlights

MLS® Number
SK026792
Type
Single Family
Ownership Type
Freehold
Land Size
4687 sqft

Building

Building Type
House
Storeys
2.00
Square Footage
2393 sqft
Bathrooms Total
4
Bedrooms Total
5
Fireplace Present
Yes
Basement Type
Full (Unfinished)
Basement Features
Building Heating Type
Forced air
Heating Fuel
Natural gas
Building Cooling Type
Air exchanger

Location

Learn more about this property
Listing provided by:
eXp Realty
MLS® number:
SK026792
Agent:
Jazz Gill
*Indicates required field
Name is required
Email is required
Please enter a valid phone number (e.g., 416-111-1111).