1300 8th Avenue, Regina, Saskatchewan S4R 1E2

Listed for:
$16
0 beds
0 baths
Listed 50 days ago
Warehouse for rent: 1300 8th Avenue, Regina, Saskatchewan S4R 1E2

View all 15 photos

About

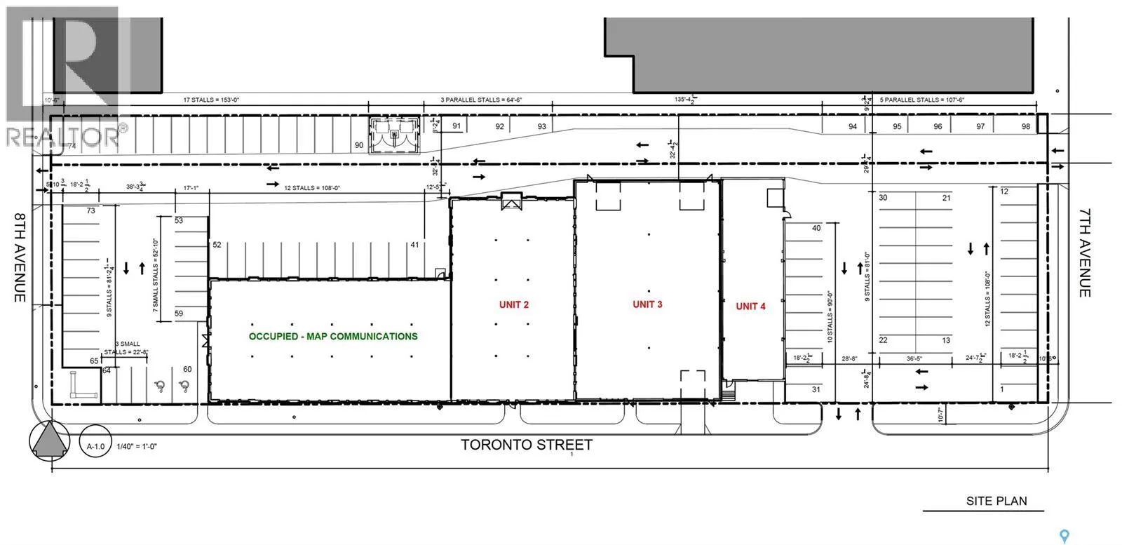
This historic and character-filled building (formerly Signal Industries) offers flexible spaces for lease ranging from 3,300 sqft up to 17,620 sqft. This particular space features an atrium-like feel with abundant natural light and high ceilings. There is also a large warehouse portion as well as office giving you a wide range of use. Its unique and rustic character-rich environment makes this suitable for a showroom, warehouse, storage, office, or creative studio. There are numerous overhead door entrances and loading docks as well making the space very versatile. Up to 38 stalls available(negotiable). (id:27476)

Property Highlights

MLS® Number
SK028187
Type
Industrial
Ownership Type
Leasehold

Building

Building Type
Warehouse
Square Footage
17620 sqft
Fireplace Present
No
Basement Type
Basement Features
Building Heating Type
Other
Heating Fuel
Building Cooling Type

Location

Learn more about this property
Listing provided by:
RE/MAX Crown Real Estate
MLS® number:
SK028187
Agent:
John Chung
*Indicates required field
Name is required
Email is required
Please enter a valid phone number (e.g., 416-111-1111).